Rif: IMMO-61035952
ARESE
MILANO € 838.000- Capannone industriale
- Vendita
- 646 Mq
- 3 Vani
- EPI: 48.80 kwh/m2 anno
- Classe energetica: C
- Descrizione
- Dettaglio immobile
- Consistenze
- Mappa
- Planimetrie
- Video e Virtual Tour
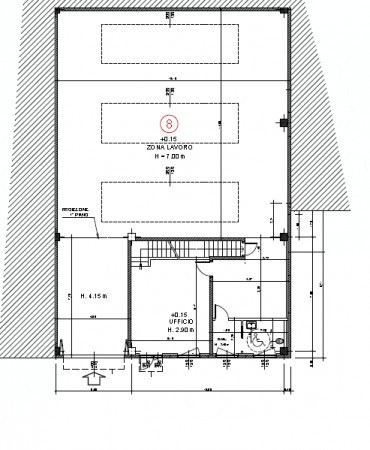
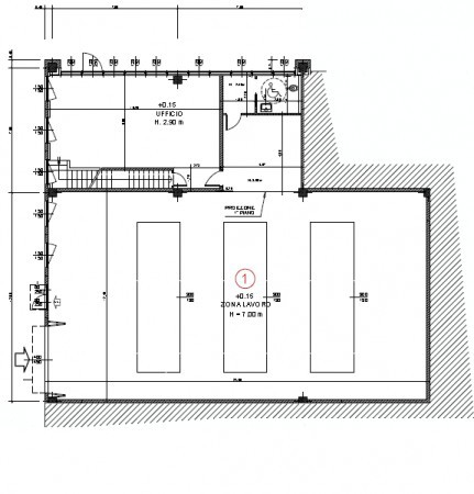
(CAPANNONE DI 429 MQ PIU' UFFICI DI 217 MQ - AREA ESTERNA DI 2500 MQ - FRONTE AUTOSTRADA) Il capannone si trova nella zona industriale di Arese (MI) posto sul fronte dell'autostrada Milano - Laghi. La zona capannone è di circa 429 mq con un'altezza utile di 7,00 metri servita da un portone d'accesso. Gli uffici sono disposti su 2 livelli per totali 217 mq (al piano terra troviamo 97 mq al piano primo i restanti 120 mq). I serramenti sono in alluminio a taglio termico con vetri antisfondamento basso emissivi. Le strutture portanti, travi e pilastri in elementi monolitici prefabbricati in C.A.P. - resistenza al fuoco REI 120. Le finiture sono ottime e personalizzabili, la forte visibilità lo rendono ideale per attività commerciali che necessitano l'esposizione di marchi. L'area esterna è di circa 2500 mq in parte a verde e in parte ad autobloccante.
VISITA ALTRE SOLUZIONI SUL NOSTRO SITO WWW.CASAEINDUSTRIA.IT
I nostri servizi:
- Intermediazione immobiliare;
- valutazioni per la locazione e la vendita di immobili;
- stesura e registrazione contratti;
- certificazioni energetiche;
- finanziamenti su misura;
- progettazione di edifici civili ed industriali;
- calcoli strutture in cemento armato, legno e acciaio;
- perizie, collaudi, asseverazioni statiche;
- direzione lavori;
- supervisione in cantiere nella fase di realizzazione;
- assistenza alle imprese (tracciamenti planimetrici ed altimetrici, contabilità di cantiere);
- computi metrici;
- verifica dispersioni termiche degli edifici (L 10/91);
- progetto impianti;
- operazioni topografiche di rilevamento completo;
- operazioni catastali (tipi di frazionamento, tipi mappali, denuncie di nuova costruzione e variazione con acquisizione della rendita catastale, volture).
VISITA ALTRE SOLUZIONI SUL NOSTRO SITO WWW.CASAEINDUSTRIA.IT
I nostri servizi:
- Intermediazione immobiliare;
- valutazioni per la locazione e la vendita di immobili;
- stesura e registrazione contratti;
- certificazioni energetiche;
- finanziamenti su misura;
- progettazione di edifici civili ed industriali;
- calcoli strutture in cemento armato, legno e acciaio;
- perizie, collaudi, asseverazioni statiche;
- direzione lavori;
- supervisione in cantiere nella fase di realizzazione;
- assistenza alle imprese (tracciamenti planimetrici ed altimetrici, contabilità di cantiere);
- computi metrici;
- verifica dispersioni termiche degli edifici (L 10/91);
- progetto impianti;
- operazioni topografiche di rilevamento completo;
- operazioni catastali (tipi di frazionamento, tipi mappali, denuncie di nuova costruzione e variazione con acquisizione della rendita catastale, volture).
Contratto Vendita
Rif IMMO-61035952
Prezzo € 838.000
Provincia Milano
Comune Arese
Indirizzo Via Monte Grappa 40">
Vani 3
Classe energetica
C (DL 192/2005)
EPI 48.80 kwh/m2 anno
Riscaldamento autonomo
Condizioni nuova costruzione
Spese condominiali € 10
| Descrizione | Superficie | Sup. comm. |
|---|---|---|
| Principali | ||
| Capannone - piano terra | 429 Mq | 429 Mqc |
| Ufficio - piano terra | 97 Mq | 97 Mqc |
| Ufficio - 1° piano | 120 Mq | 120 Mqc |
| Totale | 646 Mqc | |
Zoom della mappa
Apri con:
Apple Maps
Google Maps
Waze
Apri la mappa







