Rif: IMMO-74325280
RHO
MILANO € 37.500- Capannone industriale
- Affitto
- 7500 Mq
- 6 Vani
- EPI: 65 kwh/m2 anno
- Classe energetica: E
- Descrizione
- Dettaglio immobile
- Consistenze
- Mappa
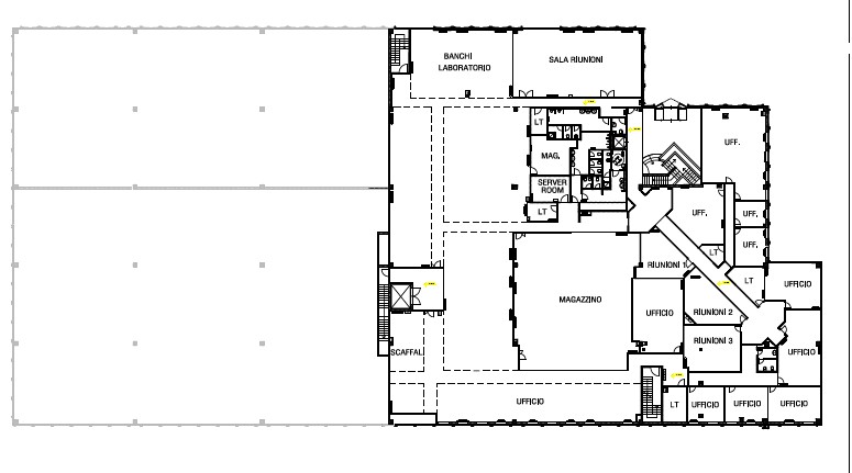
- Planimetrie
- Video e Virtual Tour
(IMMOBILE DI PRESTIGIO - CAPANNONE CON UFFICI E LABORATORI - FRONTE STRADA DI PASSAGGIO - COMODITA' MEZZI PUBBLICI) La proprietà si trova nella zona industriale di Mazzo di Rho (MI), a pochi minuti di strada dai mezzi pubblici quali la fermata metropolitana di Rho - Fiera e la fermata del treno. La zona è inoltre molto comoda con gli svincoli autostradali e con l'accesso alla tangenziale ovest. La superficie è di circa 7500 mq (piano terra di 5000 mq e piano primo di 2500 mq) comprensiva di zona stoccaggio, laboratori e uffici . La zona stoccaggio ,di circa 1800 mq, è fornita di impianti elettrici, illuminazione, riscaldamento e impianto antincendio con sprinkler, è servita da diversi portoni d'accesso è ha un'altezza utile sotto trave di 7,5 metri. Sempre al piano terra, collegata alla zona di stoccaggio, si sviluppano i locali laboratori e magazzini per ulteriori 3200 mq, comprensivi di locali tecnici, mensa, spogliatoi e servizi. Salendo al primo piano troviamo 2500 mq di uffici, in parte suddivisi in pareti mobili e in parti in conformazione open-space. Lo stabile è fornito di tutta l'impiantistica necessaria e si presenta in ottime condizioni, ideale per società multinazionali che cercano rappresentanza e visibilità. Possibilità di personalizzazioni in base alle esigenze. SCOPRI ALTRE SOLUZIONI SUL NOSTRO SITO WWW.CASAEINDUSTRIA.IT
I nostri servizi:
- Intermediazione immobiliare;
- valutazioni per la locazione e la vendita di immobili;
- stesura e registrazione contratti;
- certificazioni energetiche;
- finanziamenti su misura;
- progettazione di edifici civili ed industriali;
- calcoli strutture in cemento armato, legno e acciaio;
- perizie, collaudi, asseverazioni statiche;
- direzione lavori;
- supervisione in cantiere nella fase di realizzazione;
- assistenza alle imprese (tracciamenti planimetrici ed altimetrici, contabilità di cantiere);
- computi metrici;
- verifica dispersioni termiche degli edifici (L 10/91);
- progetto impianti;
- operazioni topografiche di rilevamento completo;
- operazioni catastali (tipi di frazionamento, tipi mappali, denunce di nuova costruzione e variazione con acquisizione della rendita catastale, volture).
I nostri servizi:
- Intermediazione immobiliare;
- valutazioni per la locazione e la vendita di immobili;
- stesura e registrazione contratti;
- certificazioni energetiche;
- finanziamenti su misura;
- progettazione di edifici civili ed industriali;
- calcoli strutture in cemento armato, legno e acciaio;
- perizie, collaudi, asseverazioni statiche;
- direzione lavori;
- supervisione in cantiere nella fase di realizzazione;
- assistenza alle imprese (tracciamenti planimetrici ed altimetrici, contabilità di cantiere);
- computi metrici;
- verifica dispersioni termiche degli edifici (L 10/91);
- progetto impianti;
- operazioni topografiche di rilevamento completo;
- operazioni catastali (tipi di frazionamento, tipi mappali, denunce di nuova costruzione e variazione con acquisizione della rendita catastale, volture).
Contratto Affitto
Rif IMMO-74325280
Prezzo € 37.500
Provincia Milano
Comune Rho
Indirizzo Via Alcide de Gasperi 106">
Vani 6
Classe energetica
E (DL 192/2005)
EPI 65 kwh/m2 anno
Riscaldamento autonomo
Condizioni ottime condizioni
Spese condominiali € 1.000
| Descrizione | Superficie | Sup. comm. |
|---|---|---|
| Principali | ||
| Capannone - piano terra | 2.500 Mq | 2.500 Mqc |
| Ufficio - piano terra | 2.500 Mq | 2.500 Mqc |
| Ufficio - 1° piano | 2.500 Mq | 2.500 Mqc |
| Totale | 7.500 Mqc | |
Zoom della mappa
Apri con:
Apple Maps
Google Maps
Waze
Apri la mappa







