Rif: IMMO-79238341
RHO
MILANO € 25.000- Ufficio
- Affitto
- 5000 Mq
- 6 Vani
- EPI: 65 kwh/m2 anno
- Classe energetica: E
- Descrizione
- Dettaglio immobile
- Consistenze
- Mappa
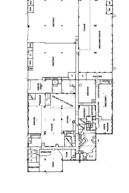
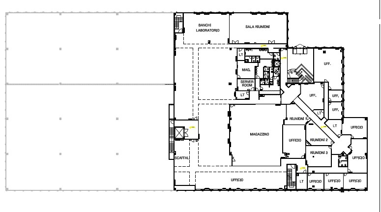
- Planimetrie
- Video e Virtual Tour
(IMMOBILE DI PRESTIGIO - UFFICI DI 5000 MQ - FRONTE STRADA DI PASSAGGIO - COMODITA' MEZZI PUBBLICI) La proprietà si trova nella zona industriale di Mazzo di Rho (MI), a pochi minuti di strada dai mezzi pubblici quali la fermata metropolitana di Rho - Fiera e la fermata del treno. La zona è inoltre molto comoda con gli svincoli autostradali e con l'accesso alla tangenziale ovest. La superficie è di circa 5000 mq disposti su due livelli, in parte suddivisi in pareti mobili e in parti in conformazione open-space. Lo stabile è fornito di tutta l'impiantistica necessaria e si presenta in ottime condizioni, ideale per società multinazionali che cercano rappresentanza e visibilità. Abbiamo la possibilità di abbinare una capannone di circa 2500 mq adiacente agli uffici. SCOPRI ALTRE SOLUZIONI SUL NOSTRO SITO WWW.CASAEINDUSTRIA.IT
I nostri servizi:
- Intermediazione immobiliare;
- valutazioni per la locazione e la vendita di immobili;
- stesura e registrazione contratti;
- certificazioni energetiche;
- finanziamenti su misura;
- progettazione di edifici civili ed industriali;
- calcoli strutture in cemento armato, legno e acciaio;
- perizie, collaudi, asseverazioni statiche;
- direzione lavori;
- supervisione in cantiere nella fase di realizzazione;
- assistenza alle imprese (tracciamenti planimetrici ed altimetrici, contabilità di cantiere);
- computi metrici;
- verifica dispersioni termiche degli edifici (L 10/91);
- progetto impianti;
- operazioni topografiche di rilevamento completo;
- operazioni catastali (tipi di frazionamento, tipi mappali, denunce di nuova costruzione e variazione con acquisizione della rendita catastale, volture).
I nostri servizi:
- Intermediazione immobiliare;
- valutazioni per la locazione e la vendita di immobili;
- stesura e registrazione contratti;
- certificazioni energetiche;
- finanziamenti su misura;
- progettazione di edifici civili ed industriali;
- calcoli strutture in cemento armato, legno e acciaio;
- perizie, collaudi, asseverazioni statiche;
- direzione lavori;
- supervisione in cantiere nella fase di realizzazione;
- assistenza alle imprese (tracciamenti planimetrici ed altimetrici, contabilità di cantiere);
- computi metrici;
- verifica dispersioni termiche degli edifici (L 10/91);
- progetto impianti;
- operazioni topografiche di rilevamento completo;
- operazioni catastali (tipi di frazionamento, tipi mappali, denunce di nuova costruzione e variazione con acquisizione della rendita catastale, volture).
Contratto Affitto
Rif IMMO-79238341
Prezzo € 25.000
Provincia Milano
Comune Rho
Indirizzo Via Alcide de Gasperi 106">
Vani 6
Classe energetica
E (DL 192/2005)
EPI 65 kwh/m2 anno
Riscaldamento autonomo
Condizioni ottime condizioni
Spese condominiali € 1.000
| Descrizione | Superficie | Sup. comm. |
|---|---|---|
| Principali | ||
| Ufficio - piano terra | 2.500 Mq | 2.500 Mqc |
| Ufficio - 1° piano | 2.500 Mq | 2.500 Mqc |
| Totale | 5.000 Mqc | |
Zoom della mappa
Apri con:
Apple Maps
Google Maps
Waze
Apri la mappa







