Rif: IMMO-101590129
PERO
MILANO € 2.500.000- Ufficio
- Vendita
- 1732 Mq
- 6 Vani
- EPI: 75.00 kwh/m2 anno
- Classe energetica: G
- Descrizione
- Dettaglio immobile
- Consistenze
- Mappa
- Planimetrie
- Video e Virtual Tour
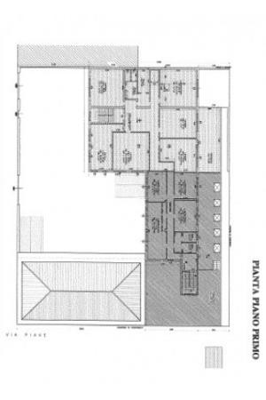
(UFFICIO DI 1393 MQ PIU' PIANO INTERRATO DI 677 MQ AD USO AUTORIMESSA/MAGAZZINO - VICINANZA METROPOLITANA) La proprietà è di recente costruzione e si trova a Pero (MI) a pochi minuti a piedi dalle fermate metropolitane di Molino Dorino e Pero Centro. La zona è inoltre molto comoda con lo svincolo della tangenziale ovest e con gli accessi autostradali. Gli uffici si sviluppano su 2 livelli per totali 1393 mq, il piano rialzato di 933 mq e il piano primo di ulteriori 460 mq. Gli uffici sono già divisi in locali e provvisti di impianti elettrici, di illuminazione, riscaldamento e condizionamento. Al piano primo troviamo inoltre un terrazzo privato di 224 mq. A completare la proprietà nel piano seminterrato con doppia rampa d'accesso sono disponibili 677 mq di superficie ad uso autorimessa/magazzini. Il cortile privato e recintato è ideale come parcheggio auto. SCOPRI ALTRE SOLUZIONI IMMOBILIARI SUL SITO WWW.CASAEINDUSTRIA.IT
I nostri servizi:
- Intermediazione immobiliare;
- valutazioni per la locazione e la vendita di immobili;
- stesura e registrazione contratti;
- certificazioni energetiche;
- finanziamenti su misura;
- progettazione di edifici civili ed industriali;
- calcoli strutture in cemento armato, legno e acciaio;
- perizie, collaudi, asseverazioni statiche;
- direzione lavori;
- supervisione in cantiere nella fase di realizzazione;
- assistenza alle imprese (tracciamenti planimetrici ed altimetrici, contabilità di cantiere);
- computi metrici;
- verifica dispersioni termiche degli edifici (L 10/91);
- progetto impianti;
- operazioni topografiche di rilevamento completo;
- operazioni catastali (tipi di frazionamento, tipi mappali, denuncie di nuova costruzione e variazione con acquisizione della rendita catastale, volture).
I nostri servizi:
- Intermediazione immobiliare;
- valutazioni per la locazione e la vendita di immobili;
- stesura e registrazione contratti;
- certificazioni energetiche;
- finanziamenti su misura;
- progettazione di edifici civili ed industriali;
- calcoli strutture in cemento armato, legno e acciaio;
- perizie, collaudi, asseverazioni statiche;
- direzione lavori;
- supervisione in cantiere nella fase di realizzazione;
- assistenza alle imprese (tracciamenti planimetrici ed altimetrici, contabilità di cantiere);
- computi metrici;
- verifica dispersioni termiche degli edifici (L 10/91);
- progetto impianti;
- operazioni topografiche di rilevamento completo;
- operazioni catastali (tipi di frazionamento, tipi mappali, denuncie di nuova costruzione e variazione con acquisizione della rendita catastale, volture).
Contratto Vendita
Rif IMMO-101590129
Prezzo € 2.500.000
Provincia Milano
Comune Pero
Indirizzo Via Antonio Gramsci 18">
Vani 6
Classe energetica
G (DL 192/2005)
EPI 75.00 kwh/m2 anno
Riscaldamento autonomo
Condizioni ottime condizioni
| Descrizione | Superficie | Sup. comm. |
|---|---|---|
| Principali | ||
| Ufficio - piano rialzato | 933 Mq | 933 Mqc |
| Ufficio - 1° piano | 460 Mq | 460 Mqc |
| Magazzino - seminterrato | 677 Mq | 338 Mqc |
| Totale | 1.731 Mqc | |
Zoom della mappa
Apri con:
Apple Maps
Google Maps
Waze
Apri la mappa







