Rif: IMMO-103793030
PERO
MILANO € 20.000- Capannone industriale
- Affitto
- 2600 Mq
- 6 Vani
- EPI: 65 kwh/m2 anno
- Classe energetica: G
- Descrizione
- Dettaglio immobile
- Consistenze
- Mappa
- Planimetrie
- Video e Virtual Tour
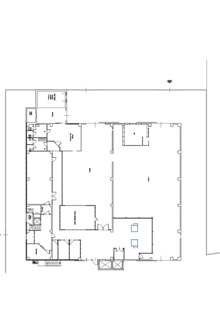
(CAPANNONE DI 1000 MQ PIU' UFFICI DI 1600 MQ - CORTILE PRIVATO - VICINANZA METROPOLITANA) La proprietà si trova nella zona industriale di Pero (MI), a poche centinaia di metri dalle fermate Metropolitane di Pero Centro e Molino Dorino. La posizione è inoltre ottimale per l'accesso alla tangenziale Ovest e agli svincoli autostradali, posta a poche centinaia di metri da Cascina Merlata e dal nuovo Centro Commerciale Merlata Bloom. La superficie totale è di circa 2600 mq suddivisa tra zona produttiva/stoccaggio e zona uffici. La zona produttiva è di circa 1000 mq con altezza utile sotto trave di 6,60 mt, servita da 2 ampi portoni d'accesso e da n° 3 carriponte. Gli uffici si sviluppano su 3 livelli per totali 1600 mq (200 mq posti al piano terra, 200 mq al piano primo e i restanti 1200 mq posti al secondo e ultimo piano), verranno consegnati con nuova pavimentazione, controsoffitti e impianto caldo/freddo a pompa di calore. Completa la proprietà il cortile privato e recintato. SCOPRI ALTRE SOLUZIONI IMMOBILIARI SUL SITO WWW.CASAEINDUSTRIA.IT I nostri servizi:
- Intermediazione immobiliare;
- valutazioni per la locazione e la vendita di immobili;
- stesura e registrazione contratti;
- certificazioni energetiche;
- finanziamenti su misura;
- progettazione di edifici civili ed industriali;
- calcoli strutture in cemento armato, legno e acciaio;
- perizie, collaudi, asseverazioni statiche;
- direzione lavori;
- supervisione in cantiere nella fase di realizzazione;
- assistenza alle imprese (tracciamenti planimetrici ed altimetrici, contabilità di cantiere);
- computi metrici;
- verifica dispersioni termiche degli edifici (L 10/91);
- progetto impianti;
- operazioni topografiche di rilevamento completo;
- operazioni catastali (tipi di frazionamento, tipi mappali, denuncie di nuova costruzione e variazione con acquisizione della rendita catastale, volture).
- Intermediazione immobiliare;
- valutazioni per la locazione e la vendita di immobili;
- stesura e registrazione contratti;
- certificazioni energetiche;
- finanziamenti su misura;
- progettazione di edifici civili ed industriali;
- calcoli strutture in cemento armato, legno e acciaio;
- perizie, collaudi, asseverazioni statiche;
- direzione lavori;
- supervisione in cantiere nella fase di realizzazione;
- assistenza alle imprese (tracciamenti planimetrici ed altimetrici, contabilità di cantiere);
- computi metrici;
- verifica dispersioni termiche degli edifici (L 10/91);
- progetto impianti;
- operazioni topografiche di rilevamento completo;
- operazioni catastali (tipi di frazionamento, tipi mappali, denuncie di nuova costruzione e variazione con acquisizione della rendita catastale, volture).
Contratto Affitto
Rif IMMO-103793030
Prezzo € 20.000
Provincia Milano
Comune Pero
Indirizzo Via Piave">
Vani 6
Classe energetica
G (DL 192/2005)
EPI 65 kwh/m2 anno
Riscaldamento autonomo
Condizioni abitabile
| Descrizione | Superficie | Sup. comm. |
|---|---|---|
| Principali | ||
| Capannone - piano terra | 1.000 Mq | 1.000 Mqc |
| Ufficio - piano terra | 200 Mq | 200 Mqc |
| Ufficio - 1° piano | 200 Mq | 200 Mqc |
| Ufficio - 2° piano | 1.200 Mq | 1.200 Mqc |
| Totale | 2.600 Mqc | |
Zoom della mappa
Apri con:
Apple Maps
Google Maps
Waze
Apri la mappa







