Rif: IMMO-108648815
RHO
MILANO € 4.500.000- Capannone industriale
- Vendita
- 4000 Mq
- 1 Vani
- EPI: 65 kwh/m2 anno
- Classe energetica: G
- Descrizione
- Dettaglio immobile
- Consistenze
- Mappa
- Planimetrie
- Video e Virtual Tour
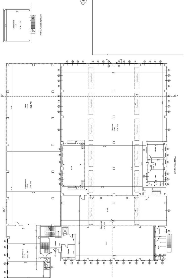
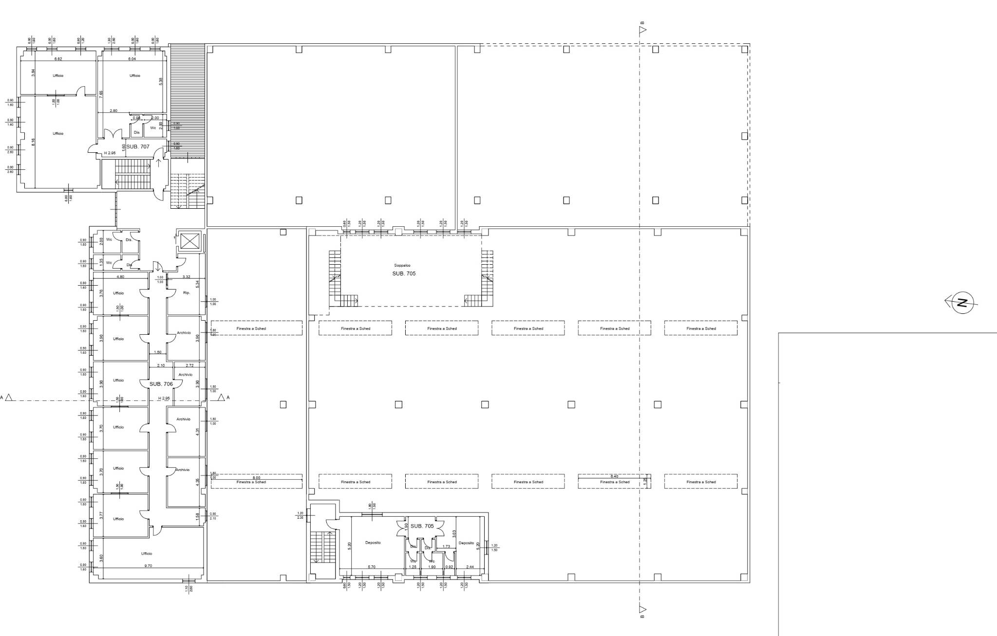
(CAPANNONE di RAPPRESENTANZA DI 2900 MQ PIU' UFFICI DI 1100 MQ - AMPIO PIAZZALE PRIVATO) Il capannone si trova nella zona industriale di Rho (MI), a pochi minuti dallo svincolo autostradale e dalla Rho - Monza. Lo stabile è in fase di completa ristrutturazione e la superficie totale è di circa 4000 mq, comprensiva di zona produttiva/stoccaggio e zona uffici. La palazzina uffici si sviluppa su due livelli per totali 1100 mq collegati da ascensore, la disposizione interna è in parte ad open-space ed in parte suddivisa in locali. Si ha la possibilità di adibire una porzione ad appartamento del custode. La zona produttiva/stoccaggio è di circa 2900 mq con altezza utile sotto trave di 6,5 metri, fornita di svariati portoni d'accesso che ne facilitano le operazioni di carico/scarico. Completa la proprietà l'ampio cortile privato che consente la sosta e il rimessaggio di mezzi pesanti. (FOTO DI REPERTORIO - INFORMAZIONI PRESSO LO STUDIO) SCOPRI ALTRE SOLUZIONI IMMOBILIARI SUL NOSTRO SITO WWW.CASAEINDUSTRIA.IT
I nostri servizi:
- Intermediazione immobiliare;
- valutazioni per la locazione e la vendita di immobili;
- stesura e registrazione contratti;
- certificazioni energetiche;
- finanziamenti su misura;
- progettazione di edifici civili ed industriali;
- calcoli strutture in cemento armato, legno e acciaio;
- perizie, collaudi, asseverazioni statiche;
- direzione lavori;
- supervisione in cantiere nella fase di realizzazione;
- assistenza alle imprese (tracciamenti planimetrici ed altimetrici, contabilità di cantiere);
- computi metrici;
- verifica dispersioni termiche degli edifici (L 10/91);
- progetto impianti;
- operazioni topografiche di rilevamento completo;
- operazioni catastali (tipi di frazionamento, tipi mappali, denunce di nuova costruzione e variazione con acquisizione della rendita catastale, volture).
I nostri servizi:
- Intermediazione immobiliare;
- valutazioni per la locazione e la vendita di immobili;
- stesura e registrazione contratti;
- certificazioni energetiche;
- finanziamenti su misura;
- progettazione di edifici civili ed industriali;
- calcoli strutture in cemento armato, legno e acciaio;
- perizie, collaudi, asseverazioni statiche;
- direzione lavori;
- supervisione in cantiere nella fase di realizzazione;
- assistenza alle imprese (tracciamenti planimetrici ed altimetrici, contabilità di cantiere);
- computi metrici;
- verifica dispersioni termiche degli edifici (L 10/91);
- progetto impianti;
- operazioni topografiche di rilevamento completo;
- operazioni catastali (tipi di frazionamento, tipi mappali, denunce di nuova costruzione e variazione con acquisizione della rendita catastale, volture).
Contratto Vendita
Rif IMMO-108648815
Prezzo € 4.500.000
Provincia Milano
Comune Rho
Indirizzo Via Valera 16">
Vani 1
Classe energetica
G (DL 192/2005)
EPI 65 kwh/m2 anno
Riscaldamento autonomo
Condizioni ottime condizioni
| Descrizione | Superficie | Sup. comm. |
|---|---|---|
| Principali | ||
| Capannone - piano terra | 2.900 Mq | 2.900 Mqc |
| Ufficio - 1° piano | 550 Mq | 550 Mqc |
| Ufficio - 2° piano | 550 Mq | 550 Mqc |
| Totale | 4.000 Mqc | |
Zoom della mappa
Apri con:
Apple Maps
Google Maps
Waze
Apri la mappa







