Rif: IMMO-101315523
PESCHIERA BORROMEO
MILANO € 2.333- Ufficio
- Affitto
- 250 Mq
- 1 Vani
- EPI: 65 kwh/m2 anno
- Classe energetica: E
- Descrizione
- Dettaglio immobile
- Consistenze
- Mappa
- Planimetrie
- Video e Virtual Tour
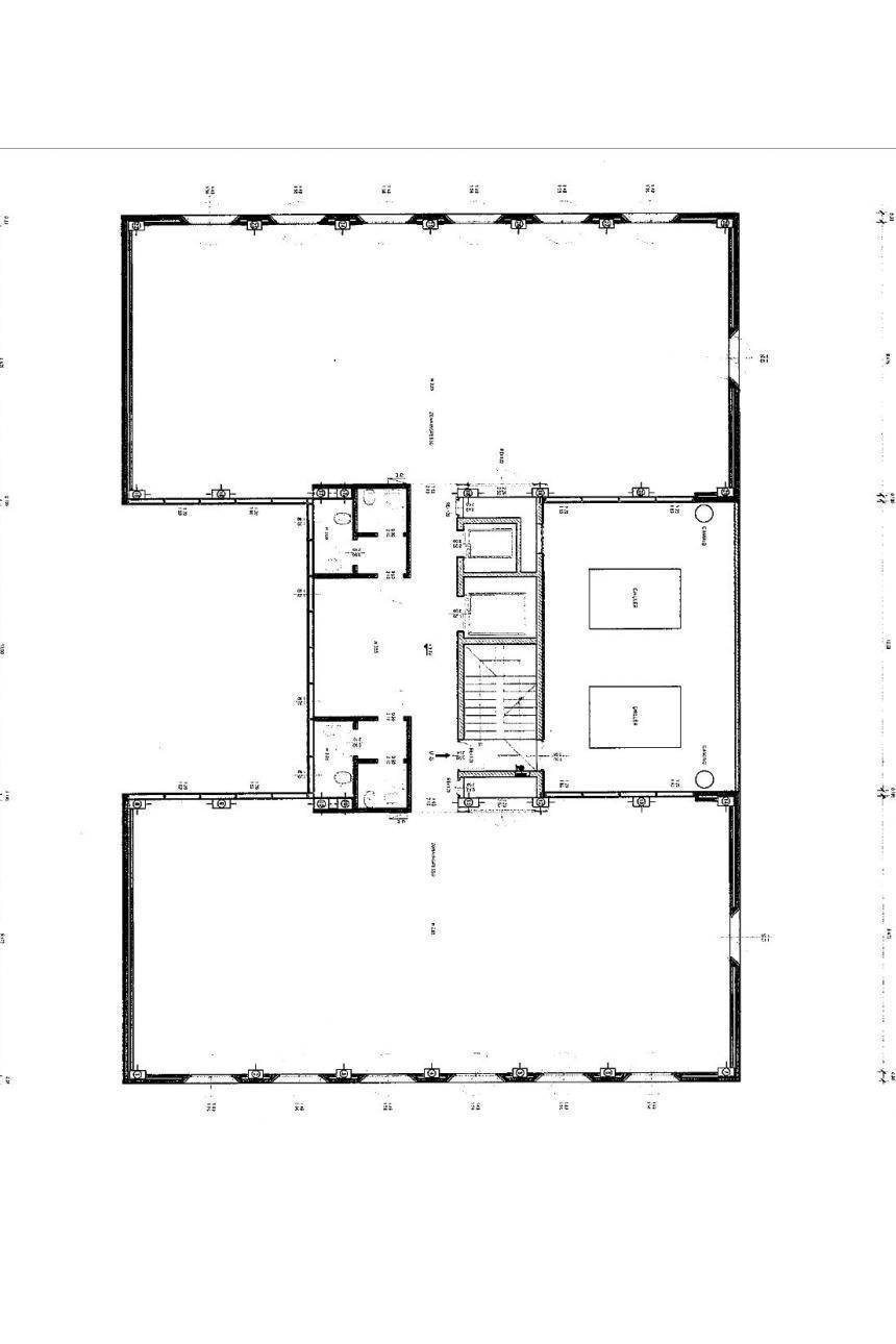
DISPONIBILITA' DI UFFICI DA 250 MQ A 3000 MQ - L'immobile si trova a Peschiera Borromeo e sorge nelle vicinanze della S.S. 415 "Nuova Paulese" asse di collegamento tra Milano e Cremona e a 10km dal centro di Milano. La grande accessibilità al sito è garantita dalla viabilità ad alto scorrimento, come la tangenziale Est, l'aeroporto di "Milano Linate" e la TEEM, il cui casello di Paullo dista soli 10km. L'immobile ha una metratura totale di 3000 mq e si sviluppa su cinque piani fuori terra da 500 mq cadauno. Tutto lo stabile è in fase di ristrutturazione e verrà garantito il riscaldamento e condizionamento a pompa di calore autonomi per ogni semipiano, impianto elettrico nuovo e certificato ed impianto luce. Ogni piano è diviso in due aree rettangolari ad uso uffici di circa 210 mq locabili anche singolarmente e tutte le aree verranno consegnate open-space. Internamente gli spazi sono provvisti di pavimento sopraelevato, controsoffitto in fibra minerale e corpi illuminanti. Tutti i piani sono accessibili da scale o da doppio ascensore di cui uno molto comodo in caso di carico di piccole merci. Ogni piano è dotato di doppio servizio e saranno anch'essi rinnovati. Possibilità di locare spazi a partire da 250 mq. VISITA ALTRE SOLUZIONI SUL NOSTRO SITO WWW.CASAEINDUSTRIA.IT
Contratto Affitto
Rif IMMO-101315523
Prezzo € 2.333
Provincia Milano
Comune Peschiera Borromeo
Indirizzo Via Giuseppe di Vittorio">
Vani 1
Classe energetica
E (DL 192/2005)
EPI 65 kwh/m2 anno
Riscaldamento inesistente
Condizioni ottime condizioni
| Descrizione | Superficie | Sup. comm. |
|---|---|---|
| Principali | ||
| Ufficio - 1° piano | 250 Mq | 250 Mqc |
| Totale | 250 Mqc | |
Zoom della mappa
Apri con:
Apple Maps
Google Maps
Waze
Apri la mappa







