Rif: IMMO-108955403
NOVA MILANESE
MONZA BRIANZA € 980.000- Capannone industriale
- Vendita
- 1540 Mq
- 4 Vani
- EPI: 387.00 kwh/m2 anno
- Classe energetica: E
- Descrizione
- Dettaglio immobile
- Consistenze
- Mappa
- Planimetrie
- Video e Virtual Tour
UBICAZIONE
L'immobile si trova a Nova Milanese in un contesto misto tra residenziale e artigianale in prossimità della via Vittorio Veneto, strada che lo collega alle principali reti stradali e autostradali.
DESCRIZIONE
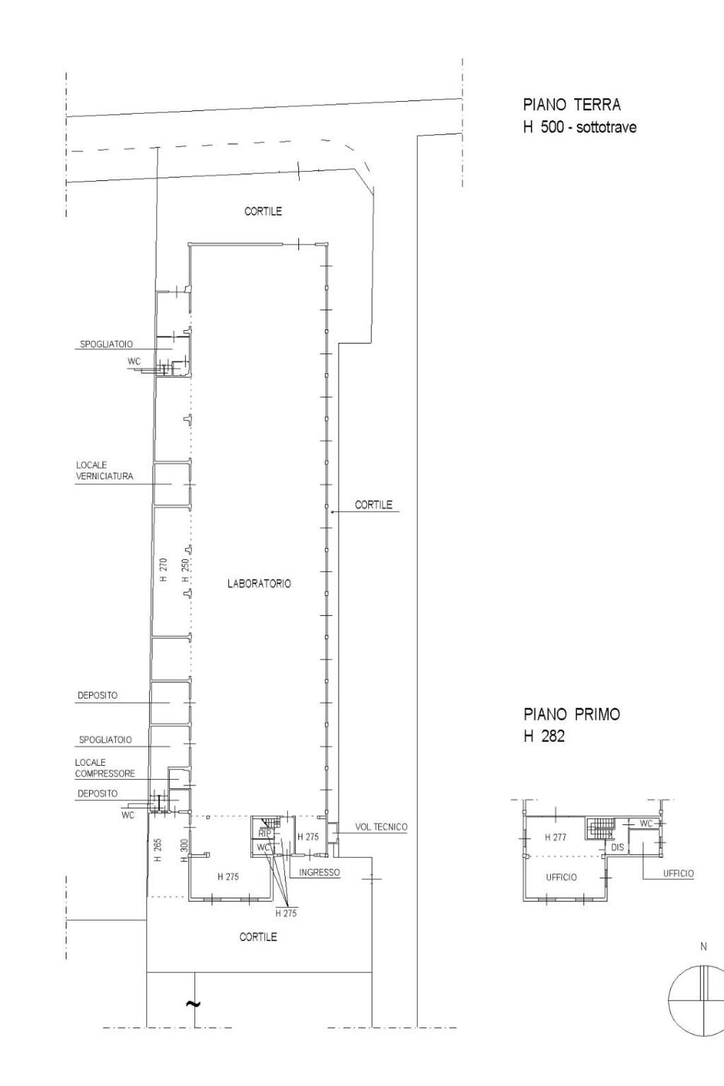
Lo stabile ha una metratura complessiva di 1540 mq di cui 1400 ad uso artigianale o deposito e 140 circa ad uso ufficio. Il capannone è di fine anni settanta ma è stato ristrutturato nel 2002 e il rifacimento del tetto nel 2008. Completa la proprietà il cortile sul fronte e sul retro per totali mq 550.
IMPIANTI
Impianto di riscaldamento e condizionamento negli uffici
Impianto elettrico certificato
NOTE
Diversi posti auto ad uso pubblico si trovano sul lato del capannone.
VISITA ALTRE SOLUZIONI SUL NOSTRO SITO WWW.CASAEINDUSTRIA.IT
L'immobile si trova a Nova Milanese in un contesto misto tra residenziale e artigianale in prossimità della via Vittorio Veneto, strada che lo collega alle principali reti stradali e autostradali.
DESCRIZIONE
Lo stabile ha una metratura complessiva di 1540 mq di cui 1400 ad uso artigianale o deposito e 140 circa ad uso ufficio. Il capannone è di fine anni settanta ma è stato ristrutturato nel 2002 e il rifacimento del tetto nel 2008. Completa la proprietà il cortile sul fronte e sul retro per totali mq 550.
IMPIANTI
Impianto di riscaldamento e condizionamento negli uffici
Impianto elettrico certificato
NOTE
Diversi posti auto ad uso pubblico si trovano sul lato del capannone.
VISITA ALTRE SOLUZIONI SUL NOSTRO SITO WWW.CASAEINDUSTRIA.IT
Contratto Vendita
Rif IMMO-108955403
Prezzo € 980.000
Provincia Monza Brianza
Comune Nova Milanese
Indirizzo Via Silvio Pellico">
Vani 4
Classe energetica
E (DL 192/2005)
EPI 387.00 kwh/m2 anno
Riscaldamento autonomo
Condizioni abitabile
| Descrizione | Superficie | Sup. comm. |
|---|---|---|
| Principali | ||
| Capannone - piano terra | 1.400 Mq | 1.400 Mqc |
| Ufficio - 1° piano | 140 Mq | 140 Mqc |
| Totale | 1.540 Mqc | |
Zoom della mappa
Apri con:
Apple Maps
Google Maps
Waze
Apri la mappa







