Rif: IMMO-114696989
SETTALA
MILANO € 24.696- Capannone industriale
- Affitto
- 4190 Mq
- 4 Vani
- EPI: 254.95 kwh/m2 anno
- Classe energetica: B
- Descrizione
- Dettaglio immobile
- Consistenze
- Mappa
- Planimetrie
- Video e Virtual Tour
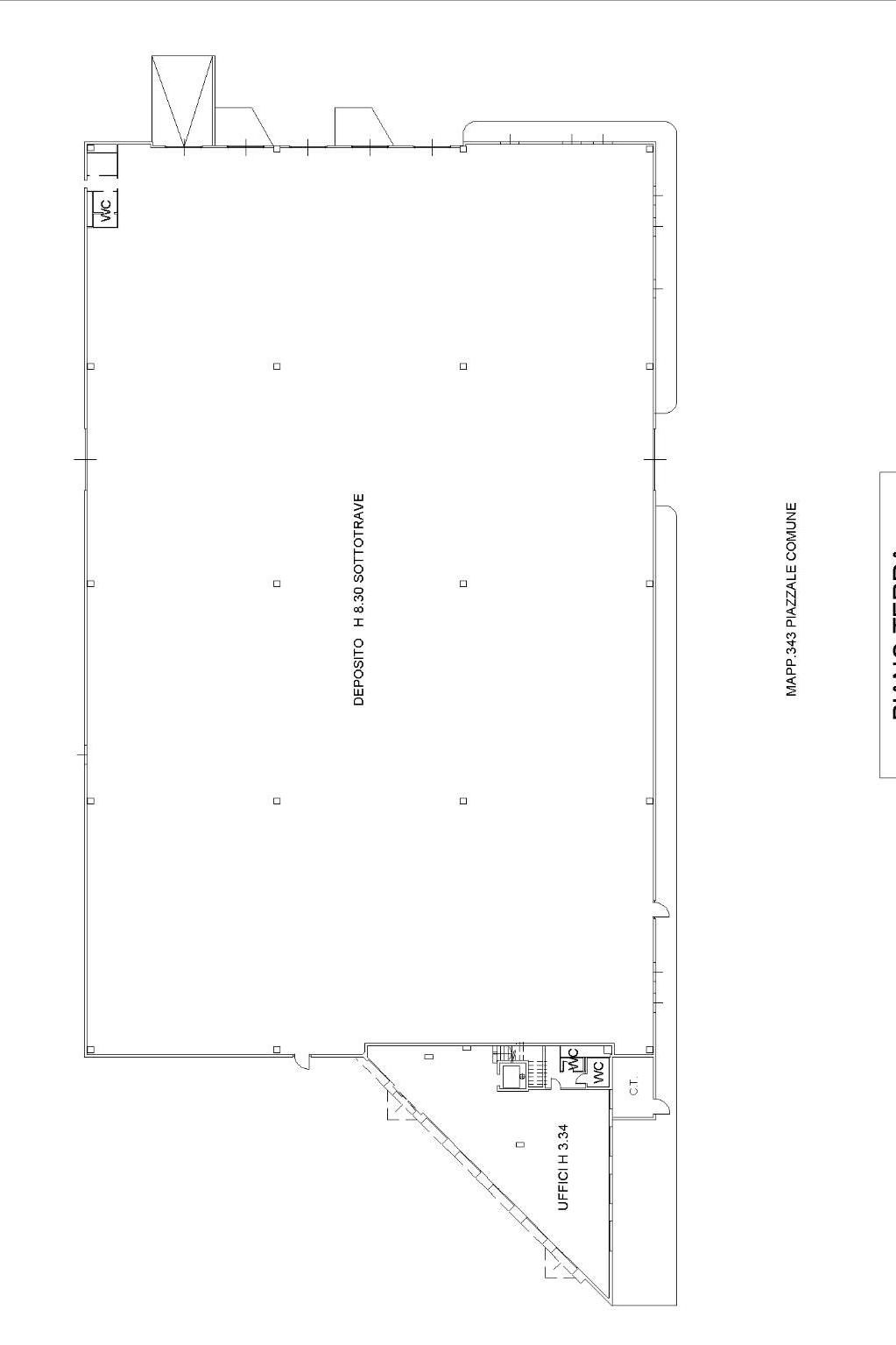
SPAZIO LOGISTICO MQ 3500 - UFFICI MQ 690 - 4 BAIE DI CARICO - 3 PORTONI D'ACCESSO - ALTEZZA CAPANNONE 8,5 SOTTO TRAVE - L'immobile si trova nel comune di Settala, in una zona strategica per le attività logistiche, sito in una posizione strategica che garantisce di raggiungere facilmente le principali vie di comunicazione e i principali snodi autostradali La superficie totale è di 4190 metri quadrati dei quali 3500 mq di spazio logistico e 690 mq ad uso uffici. La struttura è ideale per ospitare le attività di magazzino e stoccaggio di grandi quantità di beni. Lo stato di conservazione dell'immobile è buono e lo spazio esterno garantisce un'agevole manovra per qualsiasi tipo di mezzo. L'altezza interna degli ambienti è di 8,5 metri sotto trave, permettendo un'ottima disposizione degli scaffali e una grande capacità di stoccaggio in verticale. Sono presenti in totale 7 ingressi, di cui 3 piano strada e 4 baie di carico per agevolare l'accesso e la distribuzione del carico permettendo un carico e scarico efficiente e veloce. Gli uffici si sviluppa su 3 livelli e sono dotati di impianto di riscaldamento, condizionamento, pavimento galleggiante e rete dati. VISITA ALTRE SOLUZIONI SUL NOSTRO SITO WWW.CASAEINDUSTRIA.IT
Contratto Affitto
Rif IMMO-114696989
Prezzo € 24.696
Provincia Milano
Comune Settala
Indirizzo Strada Provinciale della Cerca">
Vani 4
Classe energetica
B (DL 192/2005)
EPI 254.95 kwh/m2 anno
Riscaldamento autonomo
Condizioni abitabile
Spese condominiali € 1.746
| Descrizione | Superficie | Sup. comm. |
|---|---|---|
| Principali | ||
| Capannone - piano terra | 3.500 Mq | 3.500 Mqc |
| Ufficio - piano terra | 230 Mq | 230 Mqc |
| Ufficio - 1° piano | 230 Mq | 230 Mqc |
| Ufficio - 2° piano | 230 Mq | 230 Mqc |
| Totale | 4.190 Mqc | |
Zoom della mappa
Apri con:
Apple Maps
Google Maps
Waze
Apri la mappa







