Rif: IMMO-114851955
MEZZAGO
MONZA BRIANZA € 23.833- Capannone industriale
- Affitto
- 3878 Mq
- 2 Vani
- EPI: 30.18 kwh/m2 anno
- Classe energetica: D
- Descrizione
- Dettaglio immobile
- Consistenze
- Mappa
- Planimetrie
- Video e Virtual Tour
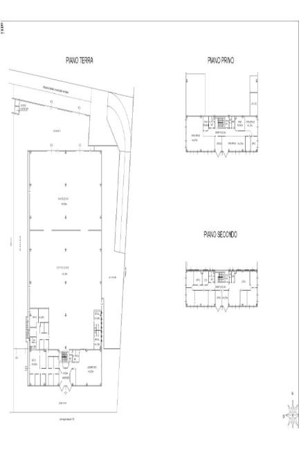
CAPANNONE MQ 2456 - UFFICI SU TRE LIVELLI MQ 1422 - L'immobile si trova a Mezzago sul fronte della strada provinciale 2 Monza – Trezzo e a pochi chilometri dall'imbocco dell'autostrada A4, dalla tangenziale Est e dalle principali strade urbane ed extra urbane. Il capannone di 2456 mq ha un'altezza di 7,5 mt con con doppio portone d'accesso e servizi annessi con l'impiantistica in fase di verifica. Gli uffici si sviluppano su tre livelli per un totale di 1422 mq, si presentano in ottime condizioni sia interne che esterne e godono di ottima visibilità e comodità grazie a innumerevoli parcheggi situati sul fronte della palazzina. La palazzina è dotata di tutta l'impiantistica necessaria con impianto di riscaldamento e condizionamento, rete dati e ricircolo dell'aria oltre controsoffitto. Gli ambienti sono molto luminosi, e attualmente sono divisi in vari uffici con pareti mobili, avendo quindi la possibilità di riformulare gli spazi in modo più adeguato alle proprie esigenze. Completa la proprietà il cortile privato di circa 800 mq comodo per il carico/scarico e manovra di qualsiasi mezzo. Da quantificare le spese condominiali. VISITA ALTRE SOLUZIONI SUL NOSTRO SITO WWW.CASAEINDUSTRIA.IT
Contratto Affitto
Rif IMMO-114851955
Prezzo € 23.833
Provincia Monza Brianza
Comune Mezzago
Indirizzo Strada Comunale n. 516 Per Mezzago">
Vani 2
Classe energetica
D (DL 192/2005)
EPI 30.18 kwh/m2 anno
Riscaldamento autonomo
Condizioni abitabile
| Descrizione | Superficie | Sup. comm. |
|---|---|---|
| Principali | ||
| Capannone - piano terra | 2.456 Mq | 2.456 Mqc |
| Ufficio - piano terra | 469 Mq | 469 Mqc |
| Ufficio - 1° piano | 490 Mq | 490 Mqc |
| Ufficio - 2° piano | 463 Mq | 463 Mqc |
| Totale | 3.878 Mqc | |
Zoom della mappa
Apri con:
Apple Maps
Google Maps
Waze
Apri la mappa







