Rif: IMMO-119184037
PERO
MILANO € 6.667- Capannone industriale
- Affitto
- 1000 Mq
- 5 Vani
- EPI: 65 kwh/m2 anno
- Classe energetica: E
- Descrizione
- Dettaglio immobile
- Consistenze
- Mappa
- Planimetrie
- Video e Virtual Tour
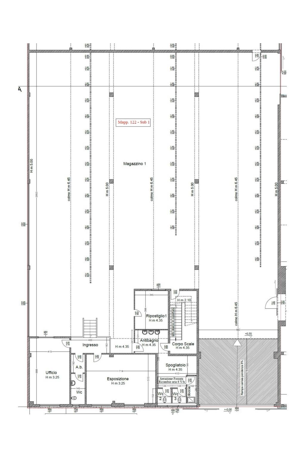
(CAPANNONE DI 875 PIU' UFFICI DI 125 MQ - COMPLETO DI IMPIANTI - ADIACENTE METROPOLITANA - IN FASE DI RISTRUTTURAZIONE) Il capannone si trova nella zona industriale di Pero (MI), a pochi passi dalla fermata metropolitana di Pero Centro, in zona molto comoda con l'accesso alla Tangenziale Ovest e con gli svincoli autostradali. La zona uffici è di c.a. 125 mq compresi servizi e spogliatoi, verrà consegnata provvista di tutta l'impiantistica necessaria e ristrutturata a nuovo. L'area produttiva/stoccaggio è di c.a. 875 mq con altezza utile di 5,00 mt, provvista di impianto elettrico, impianto antincendio, impianto di illuminazione e riscaldamento. SCOPRI ALTRE SOLUZIONI IMMOBILIARI SUL SITO WWW.CASAEINDUSTRIA.IT
I nostri servizi:
- Intermediazione immobiliare;
- valutazioni per la locazione e la vendita di immobili;
- stesura e registrazione contratti;
- certificazioni energetiche;
- finanziamenti su misura;
- progettazione di edifici civili ed industriali;
- calcoli strutture in cemento armato, legno e acciaio;
- perizie, collaudi, asseverazioni statiche;
- direzione lavori;
- supervisione in cantiere nella fase di realizzazione;
- assistenza alle imprese (tracciamenti planimetrici ed altimetrici, contabilità di cantiere);
- computi metrici;
- verifica dispersioni termiche degli edifici (L 10/91);
- progetto impianti;
- operazioni topografiche di rilevamento completo;
- operazioni catastali (tipi di frazionamento, tipi mappali, denunce di nuova costruzione e variazione con acquisizione della rendita catastale, volture).
I nostri servizi:
- Intermediazione immobiliare;
- valutazioni per la locazione e la vendita di immobili;
- stesura e registrazione contratti;
- certificazioni energetiche;
- finanziamenti su misura;
- progettazione di edifici civili ed industriali;
- calcoli strutture in cemento armato, legno e acciaio;
- perizie, collaudi, asseverazioni statiche;
- direzione lavori;
- supervisione in cantiere nella fase di realizzazione;
- assistenza alle imprese (tracciamenti planimetrici ed altimetrici, contabilità di cantiere);
- computi metrici;
- verifica dispersioni termiche degli edifici (L 10/91);
- progetto impianti;
- operazioni topografiche di rilevamento completo;
- operazioni catastali (tipi di frazionamento, tipi mappali, denunce di nuova costruzione e variazione con acquisizione della rendita catastale, volture).
Contratto Affitto
Rif IMMO-119184037
Prezzo € 6.667
Provincia Milano
Comune Pero
Indirizzo Via Fratelli Bandiera">
Vani 5
Classe energetica
E (DL 192/2005)
EPI 65 kwh/m2 anno
Riscaldamento autonomo
Condizioni ottime condizioni
| Descrizione | Superficie | Sup. comm. |
|---|---|---|
| Principali | ||
| Capannone - piano terra | 875 Mq | 875 Mqc |
| Ufficio - piano terra | 125 Mq | 125 Mqc |
| Totale | 1.000 Mqc | |
Zoom della mappa
Apri con:
Apple Maps
Google Maps
Waze
Apri la mappa







