Rif: IMMO-119209679
SEGRATE
MILANO € 2.200.000- Capannone industriale
- Vendita
- 2175 Mq
- 2 Vani
- EPI: Non disp.
- Classe energetica: Non soggetto
- Descrizione
- Dettaglio immobile
- Consistenze
- Mappa
- Planimetrie
- Video e Virtual Tour
CAPANNONE DI 2.175 MQ A SEGRATE – POSIZIONE STRATEGICA E AMPI SPAZI OPERATIVI - Proponiamo in locazione o vendita un capannone industriale e logistico situato a Segrate, in una posizione strategica nelle immediate vicinanze della Strada Provinciale Cassanese e della Tangenziale Est di Milano. Questa ubicazione garantisce un'eccellente accessibilità e collegamenti diretti con le principali arterie stradali, rendendo l'immobile ideale per attività di logistica, distribuzione e produzione leggera.
L'immobile si sviluppa su una superficie complessiva di 2.175 metri quadrati ed è così composto:
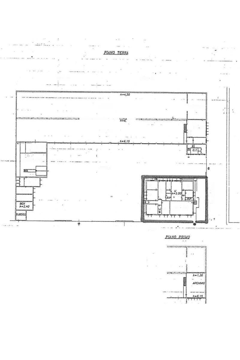
- Magazzino di 1.850 metri quadrati, realizzato negli anni Sessanta e ristrutturato nel 2005, con un'altezza interna sotto trave di 3 metri e un colmo di 6 metri dotato di undici baie di carico e un portone a raso
- Uffici direzionali di 250 metri quadrati situati al piano rialzato, dotati di impianto di riscaldamento a gas, aria condizionata e illuminazione a LED
- Appartamento per il custode di 75 metri quadrati, collocato al primo piano, ideale per garantire la presenza di personale di sorveglianza o gestione operativa.
Completa la proprietà un cortile privato di circa 2.000 metri quadrati, con due ingressi carrai, progettato per agevolare la movimentazione di mezzi pesanti e bilici, garantendo un'operatività efficiente e sicura.
Per ulteriori informazioni o per organizzare una visita, non esitate a contattarci.
SCOPRI ALTRE SOLUZIONI SUL NOSTRO SITO WWW.CASAEINDUSTRIA.IT
L'immobile si sviluppa su una superficie complessiva di 2.175 metri quadrati ed è così composto:
- Magazzino di 1.850 metri quadrati, realizzato negli anni Sessanta e ristrutturato nel 2005, con un'altezza interna sotto trave di 3 metri e un colmo di 6 metri dotato di undici baie di carico e un portone a raso
- Uffici direzionali di 250 metri quadrati situati al piano rialzato, dotati di impianto di riscaldamento a gas, aria condizionata e illuminazione a LED
- Appartamento per il custode di 75 metri quadrati, collocato al primo piano, ideale per garantire la presenza di personale di sorveglianza o gestione operativa.
Completa la proprietà un cortile privato di circa 2.000 metri quadrati, con due ingressi carrai, progettato per agevolare la movimentazione di mezzi pesanti e bilici, garantendo un'operatività efficiente e sicura.
Per ulteriori informazioni o per organizzare una visita, non esitate a contattarci.
SCOPRI ALTRE SOLUZIONI SUL NOSTRO SITO WWW.CASAEINDUSTRIA.IT
Contratto Vendita
Rif IMMO-119209679
Prezzo € 2.200.000
Provincia Milano
Comune Segrate
Indirizzo Via Umbria">
Vani 2
Classe energetica
Non soggetto
Riscaldamento inesistente
Condizioni abitabile
| Descrizione | Superficie | Sup. comm. |
|---|---|---|
| Principali | ||
| Capannone - piano terra | 1.850 Mq | 1.850 Mqc |
| Immobile - 1° piano | 75 Mq | 75 Mqc |
| Ufficio - piano rialzato | 250 Mq | 250 Mqc |
| Totale | 2.175 Mqc | |
Zoom della mappa
Apri con:
Apple Maps
Google Maps
Waze
Apri la mappa







