Rif: IMMO-119272747
AGRATE BRIANZA
MONZA BRIANZA € 980.000- Ufficio
- Vendita
- 980 Mq
- 1 Vani
- EPI: Non disp.
- Classe energetica: Non soggetto
- Descrizione
- Dettaglio immobile
- Consistenze
- Mappa
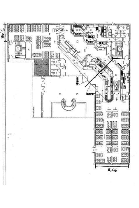
- Planimetrie
- Video e Virtual Tour
UFFICIO/NEGOZIO DI 980 METRI QUADRATI AL PRIMO PIANO – AGRATE BRIANZA, CENTRO DIREZIONALE COLLEONI - Proponiamo in locazione un immobile commerciale situato ad Agrate Brianza, all'interno del prestigioso Centro Direzionale Colleoni. L'unità si trova al primo piano ed è servita da ascensore, garantendo un comodo accesso.
Attualmente adibito a ristorazione, l'immobile offre la possibilità di essere rifinito per uso ufficio. Parte dei lavori sarà a carico della proprietà, inclusa la sistemazione della pavimentazione, il controsoffitto, il riscaldamento e il condizionamento, nonché l'impianto elettrico e di illuminazione di base.
L'unità gode di un'ottima visibilità e luminosità naturale, rendendola adatta a diverse tipologie di attività. Completano la proprietà un locale tecnico e un magazzino situati al piano interrato.
CARATTERISTICHE PRINCIPALI:
- Superficie totale di 980 metri quadrati al primo piano
- Servito da ascensore
- Attualmente adibito a ristorazione con possibilità di conversione in ufficio
- Lavori di rifinitura a carico della proprietà, inclusi pavimentazione, controsoffitto, impianti di riscaldamento e condizionamento autonomi, impianto elettrico e di illuminazione di base
- Ottima visibilità e luminosità naturale
- Locale tecnico e magazzino al piano interrato
- Possibilità di locazione frazionata per una superficie di 560 metri quadrati
POSIZIONE E COLLEGAMENTI:
- L'immobile è inserito all'interno del Centro Direzionale Colleoni, un polo business di riferimento per la zona, ben collegato con le principali arterie stradali e autostradali, garantendo facile accesso per clienti e dipendenti.
CONDIZIONE DI LOCAZIONE:
- Disponibilità immediata
- Possibilità di locazione parziale
Per maggiori informazioni o per fissare un appuntamento, contattare il nostro ufficio.
SCOPRI ALTRE SOLUZIONI SUL NOSTRO SITO WWW.CASAEINDUSTRIA.IT
Attualmente adibito a ristorazione, l'immobile offre la possibilità di essere rifinito per uso ufficio. Parte dei lavori sarà a carico della proprietà, inclusa la sistemazione della pavimentazione, il controsoffitto, il riscaldamento e il condizionamento, nonché l'impianto elettrico e di illuminazione di base.
L'unità gode di un'ottima visibilità e luminosità naturale, rendendola adatta a diverse tipologie di attività. Completano la proprietà un locale tecnico e un magazzino situati al piano interrato.
CARATTERISTICHE PRINCIPALI:
- Superficie totale di 980 metri quadrati al primo piano
- Servito da ascensore
- Attualmente adibito a ristorazione con possibilità di conversione in ufficio
- Lavori di rifinitura a carico della proprietà, inclusi pavimentazione, controsoffitto, impianti di riscaldamento e condizionamento autonomi, impianto elettrico e di illuminazione di base
- Ottima visibilità e luminosità naturale
- Locale tecnico e magazzino al piano interrato
- Possibilità di locazione frazionata per una superficie di 560 metri quadrati
POSIZIONE E COLLEGAMENTI:
- L'immobile è inserito all'interno del Centro Direzionale Colleoni, un polo business di riferimento per la zona, ben collegato con le principali arterie stradali e autostradali, garantendo facile accesso per clienti e dipendenti.
CONDIZIONE DI LOCAZIONE:
- Disponibilità immediata
- Possibilità di locazione parziale
Per maggiori informazioni o per fissare un appuntamento, contattare il nostro ufficio.
SCOPRI ALTRE SOLUZIONI SUL NOSTRO SITO WWW.CASAEINDUSTRIA.IT
Contratto Vendita
Rif IMMO-119272747
Prezzo € 980.000
Provincia Monza Brianza
Comune Agrate Brianza
Indirizzo Via General Gerolamo Cardano">
Vani 1
Classe energetica
Non soggetto
Riscaldamento inesistente
Condizioni abitabile
Spese condominiali € 4.000
| Descrizione | Superficie | Sup. comm. |
|---|---|---|
| Principali | ||
| Ufficio - 1° piano | 980 Mq | 980 Mqc |
| Totale | 980 Mqc | |
Zoom della mappa
Apri con:
Apple Maps
Google Maps
Waze
Apri la mappa







