Rif: IMMO-119438543
MEZZAGO
MONZA BRIANZA € 24.769- Capannone industriale
- Affitto
- 3963 Mq
- 4 Vani
- EPI: 65 kwh/m2 anno
- Classe energetica: G
- Descrizione
- Dettaglio immobile
- Consistenze
- Mappa
- Planimetrie
- Video e Virtual Tour
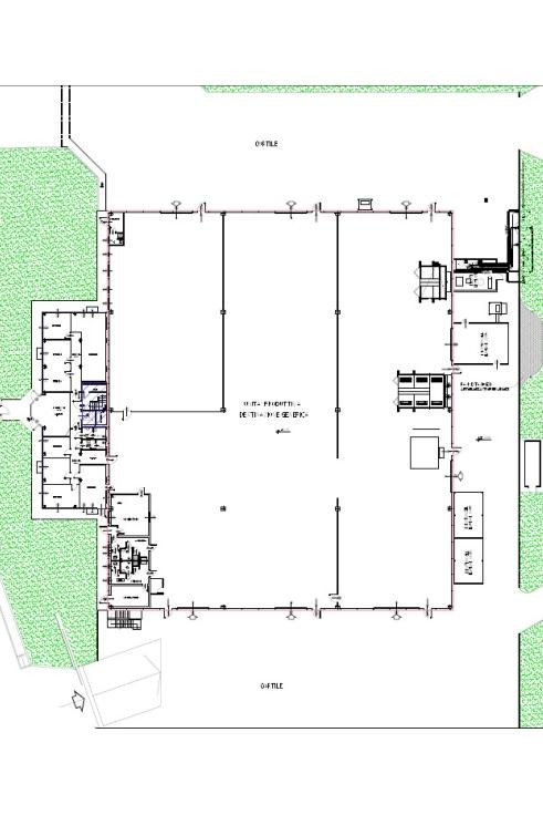
CAPANNONE INDIPENDENTE DI 3.963 MQ A MEZZAGO (MB), VICINO AUTOSTRADA A4 E TANGENZIALE EST - Proponiamo in affitto un capannone indipendente situato a Mezzago (MB), in una posizione strategica a pochi chilometri dall'imbocco dell'autostrada A4, dalla Tangenziale Est e dalle principali strade urbane ed extraurbane.
L'immobile ha una superficie totale di 3.963 mq, di cui 3.193 mq destinati a magazzino con un'altezza utile di 9 metri. Il capannone è dotato di sette portoni a raso, rendendolo ideale per attività logistiche e industriali che necessitano di un'ottima accessibilità.
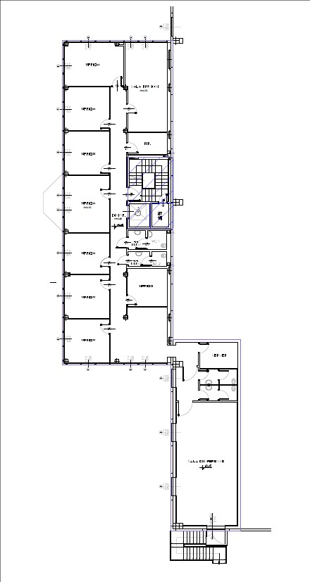
Gli uffici, che si sviluppano su tre livelli per un totale di 770 mq, si presentano in ottime condizioni sia interne che esterne. Gli ambienti sono luminosi e attualmente suddivisi con pareti mobili, offrendo la possibilità di riorganizzare gli spazi in base alle proprie esigenze. La palazzina uffici è dotata di impianto di riscaldamento e condizionamento, rete dati, sistema di ricircolo dell'aria e controsoffitto per garantire il massimo comfort lavorativo.
Completa la proprietà un ampio cortile privato di circa 5.500 mq che permette una comoda movimentazione dei mezzi e agevola le operazioni di carico e scarico. Sul fronte della palazzina sono inoltre disponibili numerosi parcheggi, rendendo l'accesso particolarmente funzionale per dipendenti e visitatori.
Contattaci per maggiori informazioni o per organizzare una visita.
SCOPRI ALTRE SOLUZIONI SUL NOSTRO SITO WWW.CASAEINDUSTRIA.IT
L'immobile ha una superficie totale di 3.963 mq, di cui 3.193 mq destinati a magazzino con un'altezza utile di 9 metri. Il capannone è dotato di sette portoni a raso, rendendolo ideale per attività logistiche e industriali che necessitano di un'ottima accessibilità.
Gli uffici, che si sviluppano su tre livelli per un totale di 770 mq, si presentano in ottime condizioni sia interne che esterne. Gli ambienti sono luminosi e attualmente suddivisi con pareti mobili, offrendo la possibilità di riorganizzare gli spazi in base alle proprie esigenze. La palazzina uffici è dotata di impianto di riscaldamento e condizionamento, rete dati, sistema di ricircolo dell'aria e controsoffitto per garantire il massimo comfort lavorativo.
Completa la proprietà un ampio cortile privato di circa 5.500 mq che permette una comoda movimentazione dei mezzi e agevola le operazioni di carico e scarico. Sul fronte della palazzina sono inoltre disponibili numerosi parcheggi, rendendo l'accesso particolarmente funzionale per dipendenti e visitatori.
Contattaci per maggiori informazioni o per organizzare una visita.
SCOPRI ALTRE SOLUZIONI SUL NOSTRO SITO WWW.CASAEINDUSTRIA.IT
Contratto Affitto
Rif IMMO-119438543
Prezzo € 24.769
Provincia Monza Brianza
Comune Mezzago
Indirizzo Via Italia">
Vani 4
Classe energetica
G (DL 192/2005)
EPI 65 kwh/m2 anno
Riscaldamento autonomo
Condizioni abitabile
| Descrizione | Superficie | Sup. comm. |
|---|---|---|
| Principali | ||
| Capannone - piano terra | 3.193 Mq | 3.193 Mqc |
| Ufficio - piano terra | 770 Mq | 770 Mqc |
| Totale | 3.963 Mqc | |
Zoom della mappa
Apri con:
Apple Maps
Google Maps
Waze
Apri la mappa







