Rif: IMMO-119457357
MEZZAGO
MONZA BRIANZA € 17.016- Capannone industriale
- Affitto
- 2836 Mq
- 2 Vani
- EPI: 30.18 kwh/m2 anno
- Classe energetica: D
- Descrizione
- Dettaglio immobile
- Consistenze
- Mappa
- Planimetrie
- Video e Virtual Tour
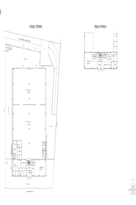
CAPANNONE MQ 2594 - UFFICI PIANO TERRA MQ 242 - L'immobile si trova a Mezzago sul fronte della strada provinciale 2 Monza – Trezzo e a pochi chilometri dall'imbocco dell'autostrada A4, dalla tangenziale Est e dalle principali strade urbane ed extra urbane. Il capannone di 2594 mq ha un'altezza di 7,5 mt con con doppio portone d'accesso e servizi annessi con l'impiantistica in fase di verifica. Gli uffici si sviluppano al piano terra per un totale di 242 mq, si presentano in ottime condizioni sia interne che esterne e godono di ottima visibilità e comodità grazie a innumerevoli parcheggi situati sul fronte della palazzina. L'ufficio è dotata di tutta l'impiantistica necessaria con impianto di riscaldamento e condizionamento, rete dati e ricircolo dell'aria oltre controsoffitto. Gli ambienti sono molto luminosi, e attualmente sono divisi in vari uffici con pareti mobili, avendo quindi la possibilità di riformulare gli spazi in modo più adeguato alle proprie esigenze. Completa la proprietà il cortile privato di circa 800 mq comodo per il carico/scarico e manovra di qualsiasi mezzo. Da quantificare le spese condominiali. SCOPRI ALTRE SOLUZIONI SUL NOSTRO SITO WWW.CASAEINDUSTRIA.IT
Contratto Affitto
Rif IMMO-119457357
Prezzo € 17.016
Provincia Monza Brianza
Comune Mezzago
Indirizzo Strada Comunale n. 516 Per Mezzago">
Vani 2
Classe energetica
D (DL 192/2005)
EPI 30.18 kwh/m2 anno
Riscaldamento autonomo
Condizioni abitabile
| Descrizione | Superficie | Sup. comm. |
|---|---|---|
| Principali | ||
| Capannone - piano terra | 2.594 Mq | 2.594 Mqc |
| Ufficio - piano terra | 242 Mq | 242 Mqc |
| Totale | 2.836 Mqc | |
Zoom della mappa
Apri con:
Apple Maps
Google Maps
Waze
Apri la mappa







