Rif: IMMO-120596628
SAN GIULIANO MILANESE
MILANO Tratt. riservata- Capannone industriale
- Affitto
- 3081 Mq
- 3 Vani
- EPI: 65 kwh/m2 anno
- Classe energetica: G
- Descrizione
- Dettaglio immobile
- Consistenze
- Mappa
- Planimetrie
- Video e Virtual Tour
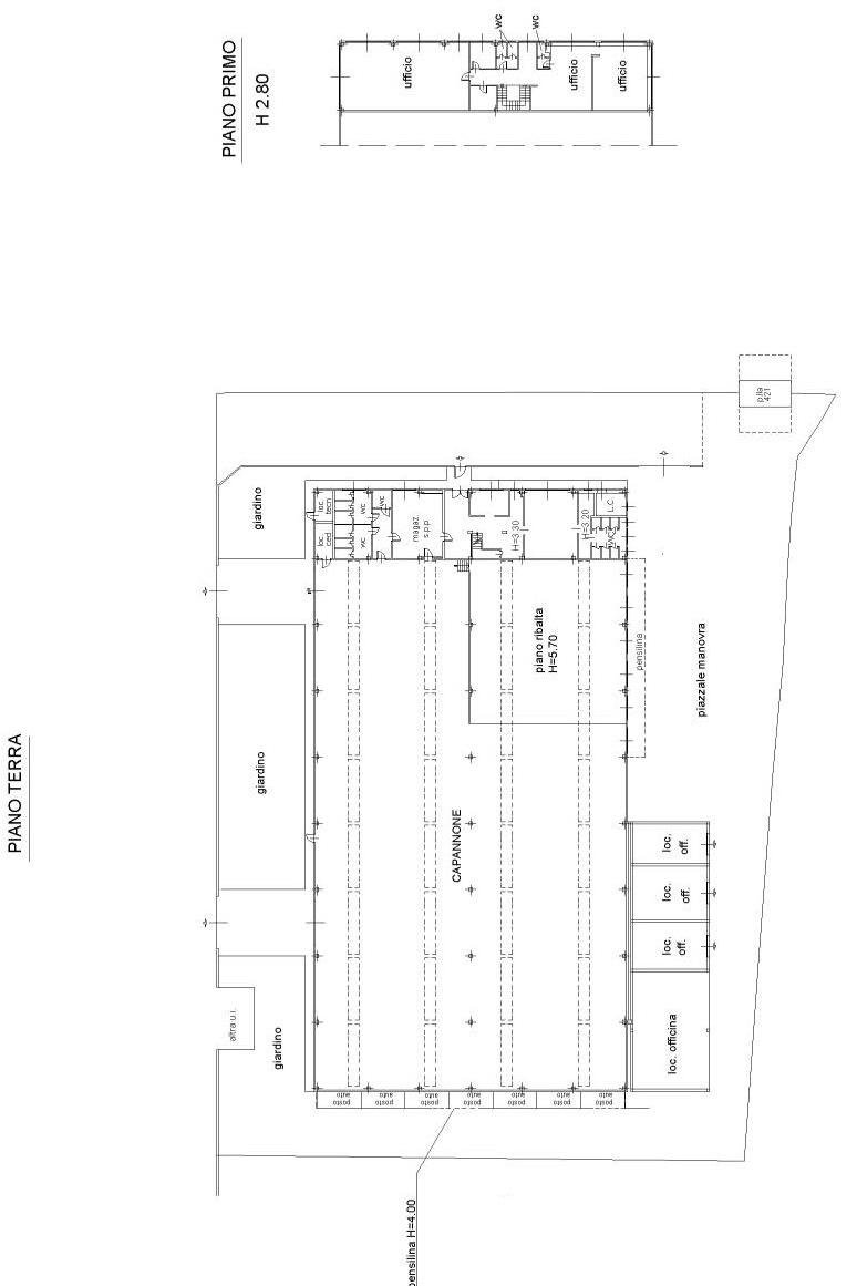
IMMOBILE LOGISTICO 3081 MQ CON 5 BAIE DI CARICO A SAN GIULIANO MILANESE - AREA MAGAZZINO MQ 2300 – AREA DEPOSITO MQ 100 - AREA RICARICA MULETTI MQ 99 – SPAZIO UFFICI PIANO PRIMO MQ 291 – SPAZIO UFFICI, SPOGLIATOI E SERVIZI PIANO TERRA MQ 291 - Situato in un polo industriale e logistico moderno ed efficiente alle immediate vicinanze di Milano, proponiamo in locazione un immobile strategico di 3081 mq progettato per rispondere alle esigenze di attività si logistiche che produttive. La posizione privilegiata garantisce un accesso diretto e rapido alle principali arterie autostradali nazionali, con un collegamento primario all'A1, facilitando la distribuzione e la ricezione merci.
L'immobile offre una superficie ad uso magazzino di circa 2300 mq, caratterizzata da un'altezza sotto trave di 6.5 metri, ottimale per lo stoccaggio verticale e la movimentazione efficiente. La presenza di 5 baie di carico e 3 portoni a raso fluidifica le operazioni di carico e scarico, riducendo i tempi e i costi logistici.
A complemento dell'area produttiva, troviamo 100 mq di spazio deposito con un'altezza di 3 metri e un'area dedicata di 99 mq per la ricarica dei muletti, elementi essenziali per una gestione interna ottimale.
La proprietà include inoltre 582 mq di uffici moderni e funzionali, disposti su due livelli e comprensivi di spogliatoi e servizi igienici al piano terra, garantendo un ambiente di lavoro confortevole per il personale amministrativo e operativo.
L'area antistante è dotata di ampi parcheggi riservati per auto e dipendenti, un ulteriore vantaggio in termini di accessibilità e organizzazione.
Le spese condominiali comprendono:
- Manutenzione presidi antincendio
- Manutenzione verde esterno
- Servizio igiene ambientale/neve
- Salatura
- Manutenzione impianti elettrici e meccanici
- Servizio di vigilanza
- Fornitura acqua
- Assicurazione all risck
- Fornitura energia elettrica comune
SCOPRI ALTRE SOLUZIONI SUL NOSTRO SITO WWW.CASAEINDUSTRIA.IT
L'immobile offre una superficie ad uso magazzino di circa 2300 mq, caratterizzata da un'altezza sotto trave di 6.5 metri, ottimale per lo stoccaggio verticale e la movimentazione efficiente. La presenza di 5 baie di carico e 3 portoni a raso fluidifica le operazioni di carico e scarico, riducendo i tempi e i costi logistici.
A complemento dell'area produttiva, troviamo 100 mq di spazio deposito con un'altezza di 3 metri e un'area dedicata di 99 mq per la ricarica dei muletti, elementi essenziali per una gestione interna ottimale.
La proprietà include inoltre 582 mq di uffici moderni e funzionali, disposti su due livelli e comprensivi di spogliatoi e servizi igienici al piano terra, garantendo un ambiente di lavoro confortevole per il personale amministrativo e operativo.
L'area antistante è dotata di ampi parcheggi riservati per auto e dipendenti, un ulteriore vantaggio in termini di accessibilità e organizzazione.
Le spese condominiali comprendono:
- Manutenzione presidi antincendio
- Manutenzione verde esterno
- Servizio igiene ambientale/neve
- Salatura
- Manutenzione impianti elettrici e meccanici
- Servizio di vigilanza
- Fornitura acqua
- Assicurazione all risck
- Fornitura energia elettrica comune
SCOPRI ALTRE SOLUZIONI SUL NOSTRO SITO WWW.CASAEINDUSTRIA.IT
Contratto Affitto
Rif IMMO-120596628
Prezzo Tratt. riservata
Provincia Milano
Comune San Giuliano Milanese
Indirizzo Via Volturno">
Vani 3
Classe energetica
G (DL 192/2005)
EPI 65 kwh/m2 anno
Riscaldamento inesistente
Condizioni abitabile
Spese condominiali € 2.817
| Descrizione | Superficie | Sup. comm. |
|---|---|---|
| Principali | ||
| Capannone - piano terra | 2.300 Mq | 2.300 Mqc |
| Capannone - piano terra | 100 Mq | 100 Mqc |
| Capannone - piano terra | 99 Mq | 99 Mqc |
| Ufficio - piano terra | 291 Mq | 291 Mqc |
| Ufficio - 1° piano | 291 Mq | 291 Mqc |
| Totale | 3.081 Mqc | |
Zoom della mappa
Apri con:
Apple Maps
Google Maps
Waze
Apri la mappa







