Rif: IMMO-120887548
MACHERIO
MONZA BRIANZA € 350.000- Capannone industriale
- Vendita
- 461 Mq
- 3 Vani
- EPI: 65 kwh/m2 anno
- Classe energetica: G
- Descrizione
- Dettaglio immobile
- Consistenze
- Mappa
- Planimetrie
- Video e Virtual Tour
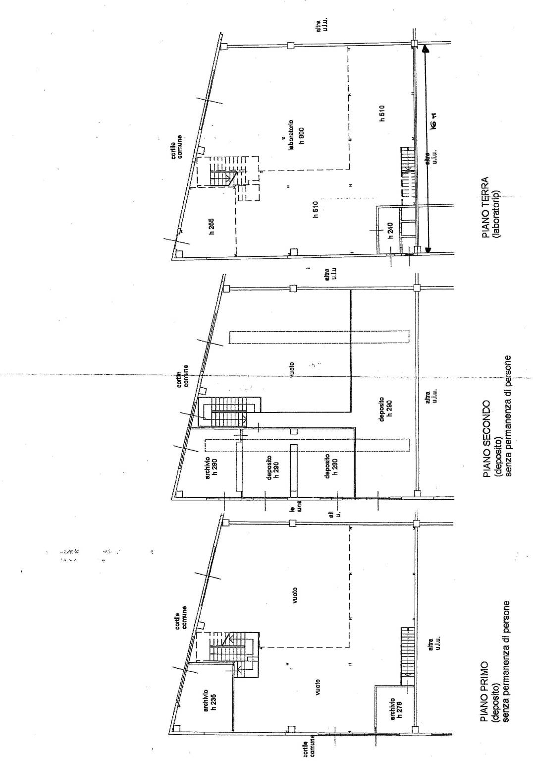
CAPANNONE 461 MQ A MACHERIO - LABORATORIO PIANO TERRA MQ 276 – ARCHIVI/DEPOSITI PIANO PRIMO MQ 30 – SOPPALCO PIANO SECONDO MQ 155 – L'immobile si trova a Macherio all'interno di un piccolo condominio industriale/artigianale, ideale per piccole attività artigiane o di deposito. Il capannone ha una metratura totale di 461 mq dei quali 276 al piano terra con altezza di 8 metri e 5,10 sotto il soppalco, dotato di comodo portone d'accesso per il carico e scarico delle merci, due depositi al primo piano rispettivamente di 20 mq e 10 mq oltre un piano soppalcato di 155 mq al piano secondo della portata di 350 kg al mq con altezza di 2,9 metri. Lo stabile è fornito di impianto elettrico certificato, impianto di riscaldamento e impianto di raffrescamento.
SCOPRI ALTRE SOLUZIONI SUL NOSTRO SITO WWW.CASAEINDUSTRIA.IT
SCOPRI ALTRE SOLUZIONI SUL NOSTRO SITO WWW.CASAEINDUSTRIA.IT
Contratto Vendita
Rif IMMO-120887548
Prezzo € 350.000
Provincia Monza Brianza
Comune Macherio
Indirizzo Via Sentiero delle Valli">
Vani 3
Classe energetica
G (DL 192/2005)
EPI 65 kwh/m2 anno
Riscaldamento autonomo
Condizioni abitabile
| Descrizione | Superficie | Sup. comm. |
|---|---|---|
| Principali | ||
| Capannone - piano terra | 276 Mq | 276 Mqc |
| Capannone - 1° piano | 30 Mq | 30 Mqc |
| Capannone - 2° piano | 155 Mq | 155 Mqc |
| Totale | 461 Mqc | |
Zoom della mappa
Apri con:
Apple Maps
Google Maps
Waze
Apri la mappa







