Rif: IMMO-121386958
PERO
MILANO € 770.000- Capannone industriale
- Vendita
- 660 Mq
- EPI: 466.98 kwh/m2 anno
- Classe energetica: E
- Descrizione
- Dettaglio immobile
- Consistenze
- Mappa
- Planimetrie
- Video e Virtual Tour
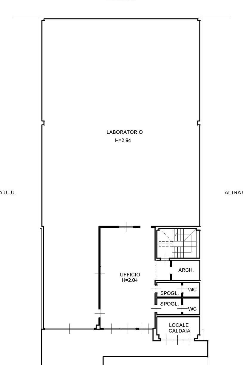
(CAPANNONE DI 660 MQ - H 10,30 mt - POSTI AUTO PRIVATI) Il capannone si trova nella zona industriale di Pero (MI), in contesto condominiale servito da portineria, a circa 15 minuti a piedi dalla fermata metropolitana di Pero Centro. La zona è inoltre molto comoda con l'accesso alla tangenziale Ovest e con gli svincoli autostradali. Il piano terra è di circa 510 mq comprensivo di locale ufficio e doppio servizio. L'altezza utile di 10,30 mt lo rende ideale per attività di stoccaggio e per l'installazione di magazzini verticali meccanizzati. Salendo al primo piano troviamo ulteriori 150 mq con possibilità di adibirli ad ufficio. La zona produttiva/stoccaggio è già provvista di impianto elettrico e di riscaldamento, gli uffici al piano terra sono dotati anche di climatizzazione. Completano la proprietà i 4 posti auto posti sul fronte dello stabile. SCOPRI ALTRE SOLUZIONI IMMOBILIARI SUL NOSTRO SITO WWW.CASAEINDUSTRIA.IT
I nostri servizi:
- Intermediazione immobiliare;
- valutazioni per la locazione e la vendita di immobili;
- stesura e registrazione contratti;
- certificazioni energetiche;
- finanziamenti su misura;
- progettazione di edifici civili ed industriali;
- calcoli strutture in cemento armato, legno e acciaio;
- perizie, collaudi, asseverazioni statiche;
- direzione lavori;
- supervisione in cantiere nella fase di realizzazione;
- assistenza alle imprese (tracciamenti planimetrici ed altimetrici, contabilità di cantiere);
- computi metrici;
- verifica dispersioni termiche degli edifici (L 10/91);
- progetto impianti;
- operazioni topografiche di rilevamento completo;
- operazioni catastali (tipi di frazionamento, tipi mappali, denunce di nuova costruzione e variazione con acquisizione della rendita catastale, volture).
I nostri servizi:
- Intermediazione immobiliare;
- valutazioni per la locazione e la vendita di immobili;
- stesura e registrazione contratti;
- certificazioni energetiche;
- finanziamenti su misura;
- progettazione di edifici civili ed industriali;
- calcoli strutture in cemento armato, legno e acciaio;
- perizie, collaudi, asseverazioni statiche;
- direzione lavori;
- supervisione in cantiere nella fase di realizzazione;
- assistenza alle imprese (tracciamenti planimetrici ed altimetrici, contabilità di cantiere);
- computi metrici;
- verifica dispersioni termiche degli edifici (L 10/91);
- progetto impianti;
- operazioni topografiche di rilevamento completo;
- operazioni catastali (tipi di frazionamento, tipi mappali, denunce di nuova costruzione e variazione con acquisizione della rendita catastale, volture).
Contratto Vendita
Rif IMMO-121386958
Prezzo € 770.000
Provincia Milano
Comune Pero
Indirizzo Via Isaac Newton 12">
Classe energetica
E (DL 192/2005)
EPI 466.98 kwh/m2 anno
Riscaldamento autonomo
Condizioni ottime condizioni
Spese condominiali € 216
| Descrizione | Superficie | Sup. comm. |
|---|---|---|
| Principali | ||
| Capannone - piano terra | 510 Mq | 510 Mqc |
| Ufficio - 1° piano | 150 Mq | 150 Mqc |
| Totale | 660 Mqc | |
Zoom della mappa
Apri con:
Apple Maps
Google Maps
Waze
Apri la mappa







