Rif: IMMO-121910130
ARLUNO
MILANO € 5.300.000- Capannone industriale
- Vendita
- 6900 Mq
- 6 Vani
- EPI: 65 kwh/m2 anno
- Classe energetica: G
- Descrizione
- Dettaglio immobile
- Consistenze
- Mappa
- Planimetrie
- Video e Virtual Tour
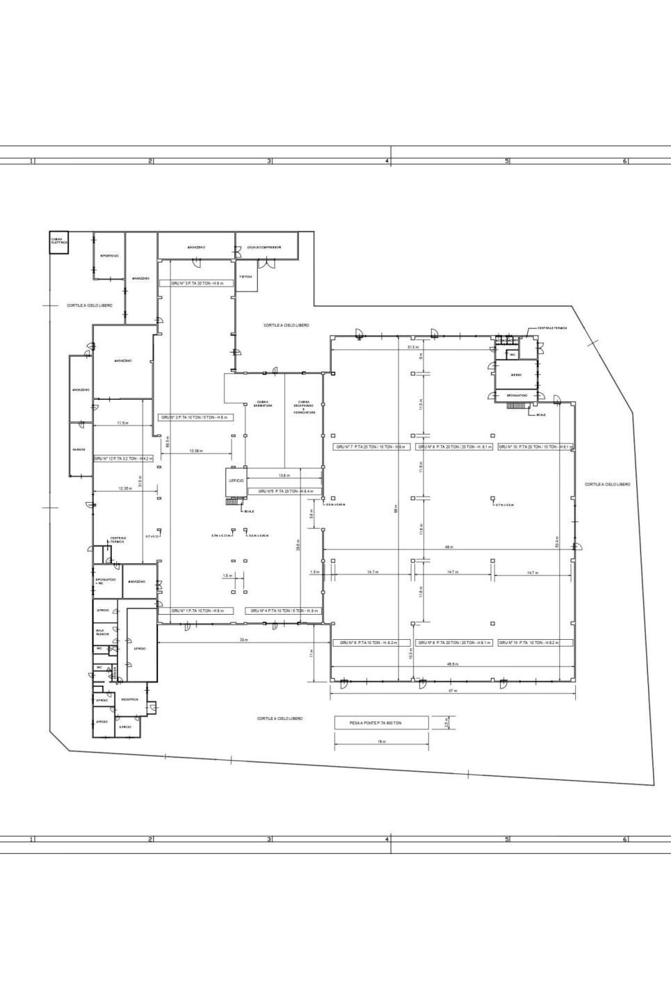
(CAPANNONE DI 6000 MQ PIU' PALAZZINA DI 500 MQ - CORTILE PRIVATO DI 4000 MQ - 12 CARRIPONTI) La proprietà si trova nella zona industriale, a pochi minuti dal casello autostradale, facilmente accessibile da mezzi pesanti. La superficie totale è di circa 6500 mq comprensiva di zona produttiva/stoccaggio e zona uffici. L'area produttiva è di circa 6000 mq con altezza utile sotto trave di 9,5 mt, provvista di impianto elettrico (potenza installata 400 KW), impianto di illuminazione, riscaldamento, aria compressa, antincendio e antintrusione. Nell'area produttiva troviamo inoltre n° 12 carriponte con portate che variano dalle 10 ton alle 40 ton, una cabina di verniciatura e una per la sabbiatura. La zona uffici si trova al piano terra ed è di circa 350 mq già provvista di tutta l'impiantistica necessaria, salendo al primo piano troviamo invece l'appartamento del custode di circa 150 mq. Completa la proprietà l'ampio cortile privato e recintato ideale per la movimentazione dei mezzi oltre alla pesa ponte posizionata nel piazzale. SCOPRI ALTRE SOLUZIONI IMMOBILIARI SUL NOSTRO SITO WWW.CASAEINDUSTRIA.IT
I nostri servizi:
- Intermediazione immobiliare;
- valutazioni per la locazione e la vendita di immobili;
- stesura e registrazione contratti;
- certificazioni energetiche;
- finanziamenti su misura;
- progettazione di edifici civili ed industriali;
- calcoli strutture in cemento armato, legno e acciaio;
- perizie, collaudi, asseverazioni statiche;
- direzione lavori;
- supervisione in cantiere nella fase di realizzazione;
- assistenza alle imprese (tracciamenti planimetrici ed altimetrici, contabilità di cantiere);
- computi metrici;
- verifica dispersioni termiche degli edifici (L 10/91);
- progetto impianti;
- operazioni topografiche di rilevamento completo;
- operazioni catastali (tipi di frazionamento, tipi mappali, denunce di nuova costruzione e variazione con acquisizione della rendita catastale, volture).
I nostri servizi:
- Intermediazione immobiliare;
- valutazioni per la locazione e la vendita di immobili;
- stesura e registrazione contratti;
- certificazioni energetiche;
- finanziamenti su misura;
- progettazione di edifici civili ed industriali;
- calcoli strutture in cemento armato, legno e acciaio;
- perizie, collaudi, asseverazioni statiche;
- direzione lavori;
- supervisione in cantiere nella fase di realizzazione;
- assistenza alle imprese (tracciamenti planimetrici ed altimetrici, contabilità di cantiere);
- computi metrici;
- verifica dispersioni termiche degli edifici (L 10/91);
- progetto impianti;
- operazioni topografiche di rilevamento completo;
- operazioni catastali (tipi di frazionamento, tipi mappali, denunce di nuova costruzione e variazione con acquisizione della rendita catastale, volture).
Contratto Vendita
Rif IMMO-121910130
Prezzo € 5.300.000
Provincia Milano
Comune Arluno
Indirizzo Via Adua">
Vani 6
Classe energetica
G (DL 192/2005)
EPI 65 kwh/m2 anno
Riscaldamento autonomo
Condizioni ottime condizioni
| Descrizione | Superficie | Sup. comm. |
|---|---|---|
| Principali | ||
| Capannone - piano terra | 5.400 Mq | 5.400 Mqc |
| Capannone - piano terra | 600 Mq | 600 Mqc |
| Ufficio - piano terra | 350 Mq | 350 Mqc |
| Immobile - 1° piano | 150 Mq | 150 Mqc |
| Terreno - piano terra | 4.000 Mq | 400 Mqc |
| Totale | 6.900 Mqc | |
Zoom della mappa
Apri con:
Apple Maps
Google Maps
Waze
Apri la mappa







