Rif: IMMO-122817134
LISSONE
MONZA BRIANZA € 6.250- Ufficio
- Affitto
- 500 Mq
- 6 Vani
- EPI: 65 kwh/m2 anno
- Classe energetica: F
- Descrizione
- Dettaglio immobile
- Consistenze
- Mappa
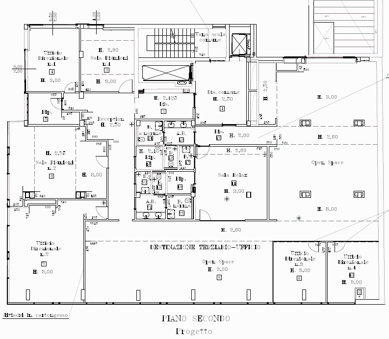
- Planimetrie
- Video e Virtual Tour
UFFICIO SITO AL SECONDO PIANO CON ASCENSORE DI 500 MQ - L'immobile si trova in una zona di alto interesse commerciale e gode di ottima visibilità essendo sito sul fronte di una strada di elevato passaggio. Lo stabile è inoltre facilmente raggiungibile in quanto si trova a pochi metri dall'ingresso e dall'uscita della Strada Statale 36, una delle principali arterie di collegamento della città. Internamente è molto luminoso e ben rifinito e dispone di tutta l'impiantistica necessaria quale riscaldamento e raffrescamento, ricircolo dell'aria e impianto elettrico certificato. Diversi posti auto ad uso pubblico sono disponibili nelle immediate vicinanze.
CARATTERISTICHE:
- Impianto di riscaldamento e condizionamento
- Ricircolo dell'aria
- Rete dati
- n. 4 servizi
LOCALIZZAZIONE IMMOBILE:
- 100 metri dalla SS36
- 5 km dalla A52 Tangenziale Nord di Milano
- 6 km dalla A4 Autostrada Torino-Trieste
- 30 km dall'aeroporto di Bergamo
- 45 Km dall'aeroporto di Linate
Contattaci per maggiori informazioni o per organizzare un sopralluogo.
SCOPRI ALTRE SOLUZIONI SUL NOSTRO SITO WWW.CASAEINDUSTRIA.IT
CARATTERISTICHE:
- Impianto di riscaldamento e condizionamento
- Ricircolo dell'aria
- Rete dati
- n. 4 servizi
LOCALIZZAZIONE IMMOBILE:
- 100 metri dalla SS36
- 5 km dalla A52 Tangenziale Nord di Milano
- 6 km dalla A4 Autostrada Torino-Trieste
- 30 km dall'aeroporto di Bergamo
- 45 Km dall'aeroporto di Linate
Contattaci per maggiori informazioni o per organizzare un sopralluogo.
SCOPRI ALTRE SOLUZIONI SUL NOSTRO SITO WWW.CASAEINDUSTRIA.IT
Contratto Affitto
Rif IMMO-122817134
Prezzo € 6.250
Provincia Monza Brianza
Comune Lissone
Indirizzo Via Giosuè Carducci">
Vani 6
Classe energetica
F (DL 192/2005)
EPI 65 kwh/m2 anno
Riscaldamento autonomo
Condizioni abitabile
Spese condominiali € 350
| Descrizione | Superficie | Sup. comm. |
|---|---|---|
| Principali | ||
| Ufficio - 2° piano | 500 Mq | 500 Mqc |
| Totale | 500 Mqc | |
Zoom della mappa
Apri con:
Apple Maps
Google Maps
Waze
Apri la mappa







