Rif: IMMO-123197405
VERDELLINO
BERGAMO € 11.000.000- Capannone industriale
- Vendita
- 15600 Mq
- 5 Vani
- EPI: 40,87 kwh/m2 anno
- Classe energetica: A4
- Descrizione
- Dettaglio immobile
- Consistenze
- Mappa
- Planimetrie
- Video e Virtual Tour
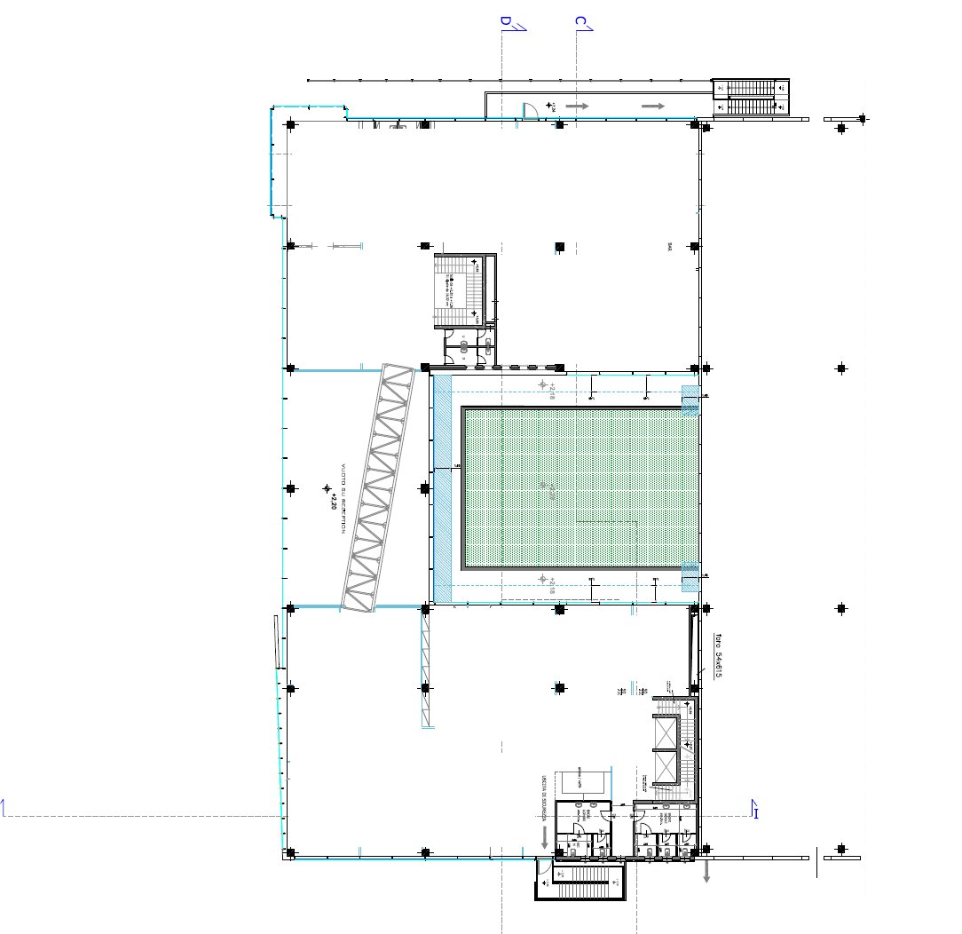
CAPANNONE MQ 15600 A ISSO ADIACENTE BREBEMI - Disponibilità di immobile industriale sito nel comune di Isso (BG) di mq 15600 circa composto da area produttiva o di stoccaggio di mq 9800, spogliatoi e servizi mq 390, uffici al rustico mq 3200 disposti su due livelli, autorimessa mq 2200 sita al piano interrato, parcheggio esterno privato e recintato mq 2800, cotile privato per manovra mezzi mq 7000 c.a.
CARATTERISTICHE:
- N. 5 portoni a raso
- altezza sotto trave 9 mt
- area produttiva divisa in tre campate di uguale metratura
- impianto di riscaldamento ad aria su una campata
- impianto di riscaldamento a pavimento con impianto di aspirazione e ventilazione su 2 campate
- impianto fotovoltaico
- impianto elettrico certificato
- allarme
LOCALIZZAZIONE IMMOBILE:
- 2,6 km dalla A35 BreBeMi
- 30 km dall'aeroporto di Bergamo
- 40 Km dall'aeroporto di Linate
Contattaci per maggiori informazioni o per organizzare un sopralluogo.
SCOPRI ALTRE SOLUZIONI SUL NOSTRO SITO WWW.CASAEINDUSTRIA.IT
CARATTERISTICHE:
- N. 5 portoni a raso
- altezza sotto trave 9 mt
- area produttiva divisa in tre campate di uguale metratura
- impianto di riscaldamento ad aria su una campata
- impianto di riscaldamento a pavimento con impianto di aspirazione e ventilazione su 2 campate
- impianto fotovoltaico
- impianto elettrico certificato
- allarme
LOCALIZZAZIONE IMMOBILE:
- 2,6 km dalla A35 BreBeMi
- 30 km dall'aeroporto di Bergamo
- 40 Km dall'aeroporto di Linate
Contattaci per maggiori informazioni o per organizzare un sopralluogo.
SCOPRI ALTRE SOLUZIONI SUL NOSTRO SITO WWW.CASAEINDUSTRIA.IT
Contratto Vendita
Rif IMMO-123197405
Prezzo € 11.000.000
Provincia Bergamo
Comune Verdellino
Indirizzo Via Francesca">
Vani 5
Classe energetica
A4 (DL 90/2013)
EPgl,nren 40,87 kwh/m2 anno
Riscaldamento autonomo
Condizioni abitabile
| Descrizione | Superficie | Sup. comm. |
|---|---|---|
| Principali | ||
| Capannone - piano terra | 10.190 Mq | 10.190 Mqc |
| Ufficio - piano terra | 1.400 Mq | 1.400 Mqc |
| Ufficio - 1° piano | 1.800 Mq | 1.800 Mqc |
| Capannone - piano interrato | 2.210 Mq | 2.210 Mqc |
| Totale | 15.600 Mqc | |
Zoom della mappa
Apri con:
Apple Maps
Google Maps
Waze
Apri la mappa







