Rif: IMMO-123664119
LAINATE
MILANO € 135.000- Capannone industriale
- Vendita
- 490 Mq
- EPI: 65 kwh/m2 anno
- Classe energetica: G
- Descrizione
- Dettaglio immobile
- Consistenze
- Mappa
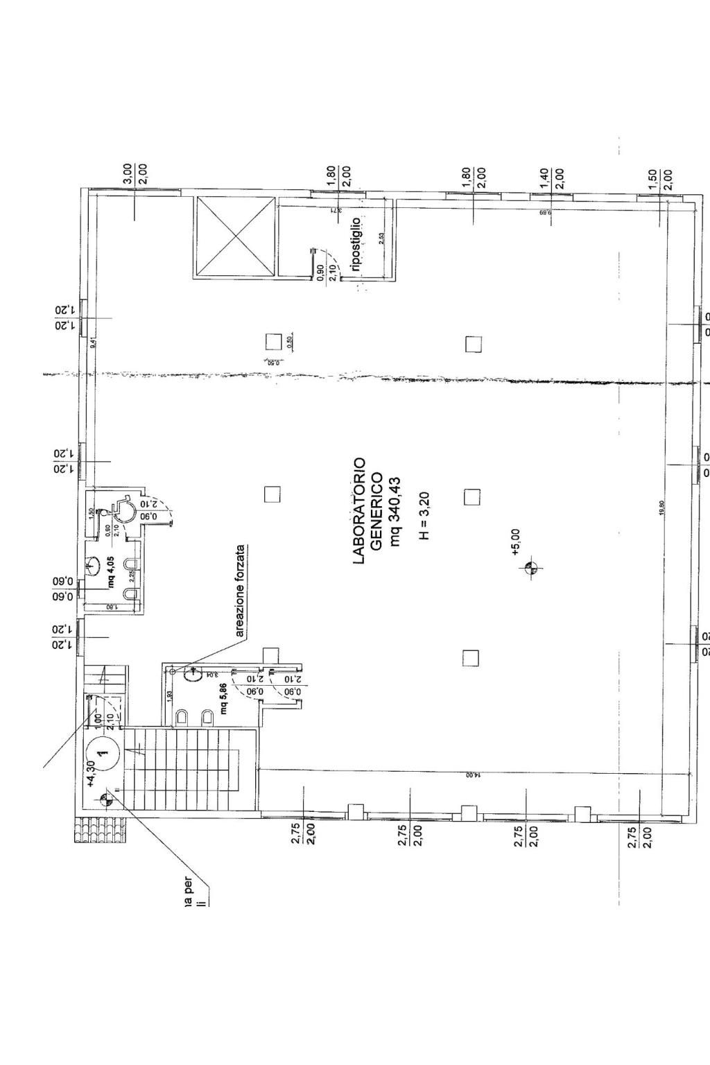
- Planimetrie
- Video e Virtual Tour
(LABORATORIO DI 380 MQ PIU' MAGAZZINO DI 110 MQ - LASTRICO SOLARE DI PROPRIETA') La proprietà si trova nella zona industriale di Lainate (MI), in contesto condominiale servito da ampie aree di manovra e parcheggio. La superficie totale è di circa 490 mq distribuita su 2 livelli. Al piano interrato di c.a. 110 mq troviamo l'area magazzino accessibile da rampa d'accesso che consente le operazioni di carico/scarico di furgoni e automobili. La zona laboratorio è un ampio locale openspace di circa 380 mq provvisto di doppio servizio. I piani sono tra loro collegati da vano scala e montacarichi. Completa l'immobile il lastrico solare di proprietà. SCOPRI ALTRE SOLUZIONI IMMOBILIARI SUL NOSTRO SITO WWW.CASAEINDUSTRIA.IT
I nostri servizi:
- Intermediazione immobiliare;
- valutazioni per la locazione e la vendita di immobili;
- stesura e registrazione contratti;
- certificazioni energetiche;
- finanziamenti su misura;
- progettazione di edifici civili ed industriali;
- calcoli strutture in cemento armato, legno e acciaio;
- perizie, collaudi, asseverazioni statiche;
- direzione lavori;
- supervisione in cantiere nella fase di realizzazione;
- assistenza alle imprese (tracciamenti planimetrici ed altimetrici, contabilità di cantiere);
- computi metrici;
- verifica dispersioni termiche degli edifici (L 10/91);
- progetto impianti;
- operazioni topografiche di rilevamento completo;
- operazioni catastali (tipi di frazionamento, tipi mappali, denunce di nuova costruzione e variazione con acquisizione della rendita catastale, volture).
I nostri servizi:
- Intermediazione immobiliare;
- valutazioni per la locazione e la vendita di immobili;
- stesura e registrazione contratti;
- certificazioni energetiche;
- finanziamenti su misura;
- progettazione di edifici civili ed industriali;
- calcoli strutture in cemento armato, legno e acciaio;
- perizie, collaudi, asseverazioni statiche;
- direzione lavori;
- supervisione in cantiere nella fase di realizzazione;
- assistenza alle imprese (tracciamenti planimetrici ed altimetrici, contabilità di cantiere);
- computi metrici;
- verifica dispersioni termiche degli edifici (L 10/91);
- progetto impianti;
- operazioni topografiche di rilevamento completo;
- operazioni catastali (tipi di frazionamento, tipi mappali, denunce di nuova costruzione e variazione con acquisizione della rendita catastale, volture).
Contratto Vendita
Rif IMMO-123664119
Prezzo € 135.000
Provincia Milano
Comune Lainate
Indirizzo Via Nerviano 31A">
Classe energetica
G (DL 192/2005)
EPI 65 kwh/m2 anno
Riscaldamento inesistente
Condizioni abitabile
| Descrizione | Superficie | Sup. comm. |
|---|---|---|
| Principali | ||
| Capannone - piano interrato | 110 Mq | 110 Mqc |
| Laboratorio - 1° piano | 380 Mq | 380 Mqc |
| Totale | 490 Mqc | |
Zoom della mappa
Apri con:
Apple Maps
Google Maps
Waze
Apri la mappa







