Rif: IMMO-123684029
BAREGGIO
MILANO € 1.780.000- Capannone industriale
- Vendita
- 2150 Mq
- 6 Vani
- EPI: 246.55 kwh/m2 anno
- Classe energetica: C
- Descrizione
- Dettaglio immobile
- Consistenze
- Mappa
- Planimetrie
- Video e Virtual Tour
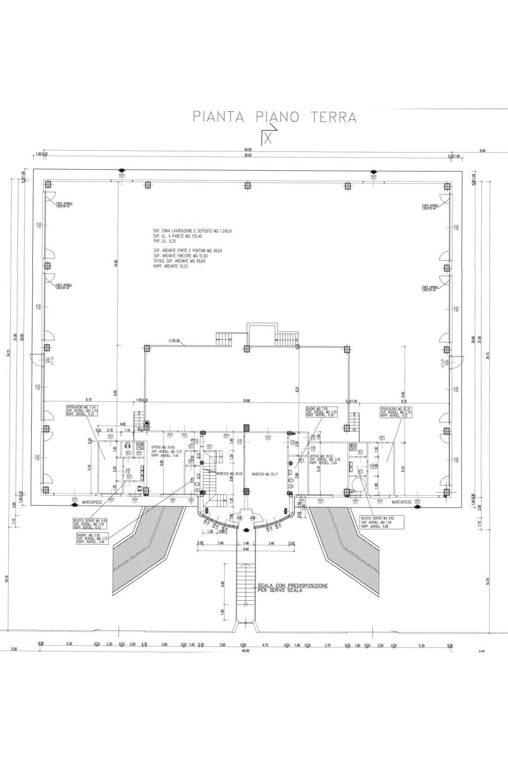
(CAPANNONE INDUSTRIALE DI 2150 MQ COMPRESI UFFICI e APPARTAMENTO - CARROPONTE 10 TON - POTENZA INSTALLATA 40 KW) La proprietà si trova nella zona industriale di Bareggio (MI), a pochi minuti dall'ingresso della Tangenziale Ovest e dagli svincoli autostradali. La superficie totale è di circa 2150 mq comprensiva di zona produttiva/stoccaggio e zona uffici/appartamento. La palazzina sul fronte strada è di circa 425 mq disposta su due livelli, al piano rialzato troviamo uffici e servizi per c.a. 165 mq, salendo al primo piano i restanti 130 mq di uffici oltre ad un ampio appartamento di altrettanti 130 mq. Uffici e appartamento sono provvisti di tutta l'impiantistica necessaria e pronti all'uso. L'area produttiva è di c.a. 910 mq con altezza utile di 8.00 mt provvista di carroponte (portata 10 ton), impianto d'aria compressa, illuminazione, riscaldamento e forza motrice (disponibili 40 KW). Al piano rialzato e al piano primo troviamo altri spazi adibiti a deposito/stoccaggio per c.a. 500 mq. Al piano seminterrato troviamo un'area deposito/rimessaggio di c.a. 320 mq accessibile da doppia rampa. Completa la proprietà il cortile privato e recintato accessibile da due ampi passi carrai. SCOPRI ALTRE SOLUZIONI IMMOBILIARI SUL SITO WWW.CASAEINDUSTRIA.IT
I nostri servizi:
- Intermediazione immobiliare;
- valutazioni per la locazione e la vendita di immobili;
- stesura e registrazione contratti;
- certificazioni energetiche;
- finanziamenti su misura;
- progettazione di edifici civili ed industriali;
- calcoli strutture in cemento armato, legno e acciaio;
- perizie, collaudi, asseverazioni statiche;
- direzione lavori;
- supervisione in cantiere nella fase di realizzazione;
- assistenza alle imprese (tracciamenti planimetrici ed altimetrici, contabilità di cantiere);
- computi metrici;
- verifica dispersioni termiche degli edifici (L 10/91);
- progetto impianti;
- operazioni topografiche di rilevamento completo;
- operazioni catastali (tipi di frazionamento, tipi mappali, denuncie di nuova costruzione e variazione con acquisizione della rendita catastale, volture).
I nostri servizi:
- Intermediazione immobiliare;
- valutazioni per la locazione e la vendita di immobili;
- stesura e registrazione contratti;
- certificazioni energetiche;
- finanziamenti su misura;
- progettazione di edifici civili ed industriali;
- calcoli strutture in cemento armato, legno e acciaio;
- perizie, collaudi, asseverazioni statiche;
- direzione lavori;
- supervisione in cantiere nella fase di realizzazione;
- assistenza alle imprese (tracciamenti planimetrici ed altimetrici, contabilità di cantiere);
- computi metrici;
- verifica dispersioni termiche degli edifici (L 10/91);
- progetto impianti;
- operazioni topografiche di rilevamento completo;
- operazioni catastali (tipi di frazionamento, tipi mappali, denuncie di nuova costruzione e variazione con acquisizione della rendita catastale, volture).
Contratto Vendita
Rif IMMO-123684029
Prezzo € 1.780.000
Provincia Milano
Comune Bareggio
Indirizzo Viale Alcide de Gasperi">
Vani 6
Classe energetica
C (DL 192/2005)
EPI 246.55 kwh/m2 anno
Riscaldamento autonomo
Condizioni ottime condizioni
| Descrizione | Superficie | Sup. comm. |
|---|---|---|
| Principali | ||
| Capannone - piano terra | 910 Mq | 910 Mqc |
| Ufficio - piano rialzato | 165 Mq | 165 Mqc |
| Capannone - piano rialzato | 165 Mq | 165 Mqc |
| Capannone - seminterrato | 320 Mq | 320 Mqc |
| Capannone - 1° piano | 330 Mq | 330 Mqc |
| Ufficio - 1° piano | 130 Mq | 130 Mqc |
| Immobile - 1° piano | 130 Mq | 130 Mqc |
| Totale | 2.150 Mqc | |
Zoom della mappa
Apri con:
Apple Maps
Google Maps
Waze
Apri la mappa







