Rif: IMMO-123684091
MILANO
MILANO | - zona Musocco € 5.833- Capannone industriale
- Affitto
- 881 Mq
- 6 Vani
- EPI: 101.16 kwh/m2 anno
- Classe energetica: G
- Descrizione
- Dettaglio immobile
- Consistenze
- Mappa
- Planimetrie
- Video e Virtual Tour
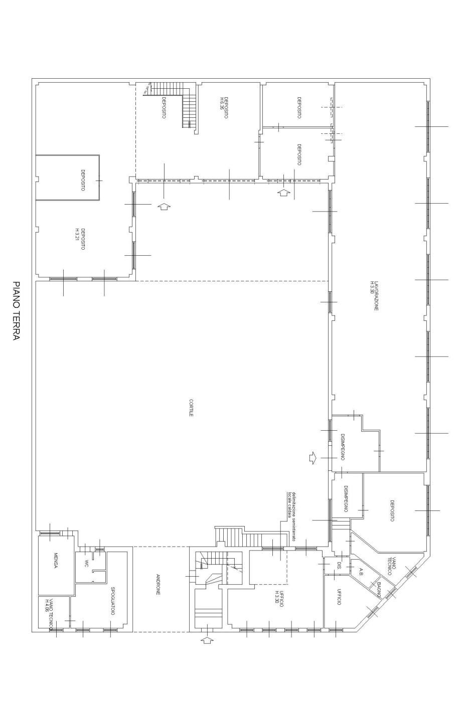
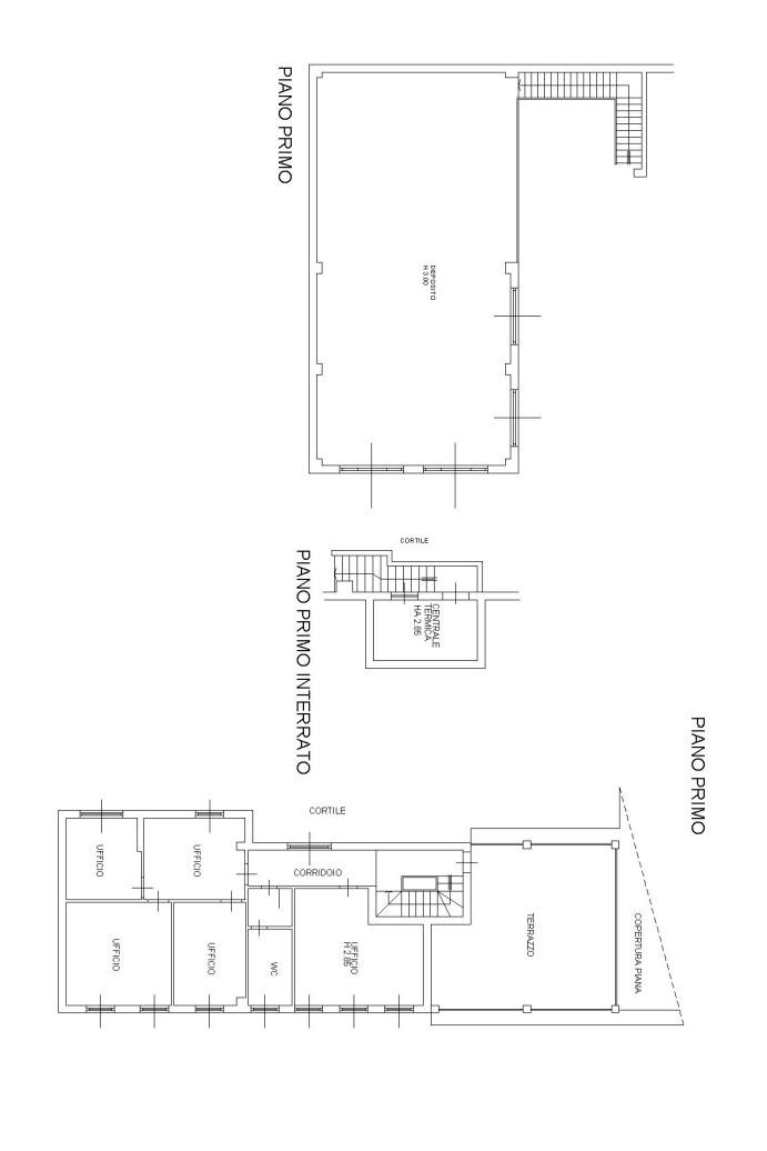
(LABORATORIO DI 600 MQ PIU' UFFICI DI 190 MQ - CORTILE PRIVATO DI 410 MQ - TETTOIA 100 MQ) La proprietà è indipendente e si trova nella zona industriale di Via Stephenson a Milano (MI), zona molto comoda per gli ingressi autostradali e per raggiungere il centro città. Al piano terra troviamo la zona produttiva/stoccaggio di circa 540 mq (in parte utilizzabile anche come area uffici), con altezza utile di 3,30 mt, fornita di impianto di riscaldamento/condizionamento e impianto elettrico. Sempre al piano terra, con ingresso indipendente da strada ,abbiamo circa 90 mq di area uffici/servizi. Salendo al primo piano troviamo ulteriori 100 mq di uffici oltre ad ampio terrazzo. Completa la proprietà il cortile privato di circa 410 mq oltre alla tettoia ideale per lo operazioni di carico/scarico al coperto. SCOPRI ALTRE SOLUZIONI IMMOBILIARI SUL SITO WWW. CASAEINDUSTRIA. IT I nostri servizi:
- Intermediazione immobiliare;
- valutazioni per la locazione e la vendita di immobili;
- stesura e registrazione contratti;
- certificazioni energetiche;
- finanziamenti su misura;
- progettazione di edifici civili ed industriali;
- calcoli strutture in cemento armato, legno e acciaio;
- perizie, collaudi, asseverazioni statiche;
- direzione lavori;
- supervisione in cantiere nella fase di realizzazione;
- assistenza alle imprese (tracciamenti planimetrici ed altimetrici, contabilità di cantiere);
- computi metrici;
- verifica dispersioni termiche degli edifici (L 10/91);
- progetto impianti;
- operazioni topografiche di rilevamento completo;
- operazioni catastali (tipi di frazionamento, tipi mappali, denuncie di nuova costruzione e variazione con acquisizione della rendita catastale, volture).
- Intermediazione immobiliare;
- valutazioni per la locazione e la vendita di immobili;
- stesura e registrazione contratti;
- certificazioni energetiche;
- finanziamenti su misura;
- progettazione di edifici civili ed industriali;
- calcoli strutture in cemento armato, legno e acciaio;
- perizie, collaudi, asseverazioni statiche;
- direzione lavori;
- supervisione in cantiere nella fase di realizzazione;
- assistenza alle imprese (tracciamenti planimetrici ed altimetrici, contabilità di cantiere);
- computi metrici;
- verifica dispersioni termiche degli edifici (L 10/91);
- progetto impianti;
- operazioni topografiche di rilevamento completo;
- operazioni catastali (tipi di frazionamento, tipi mappali, denuncie di nuova costruzione e variazione con acquisizione della rendita catastale, volture).
Contratto Affitto
Rif IMMO-123684091
Prezzo € 5.833
Provincia Milano
Comune Milano
Zona - Zona Musocco
Indirizzo Via Privata Polonia">
Vani 6
Classe energetica
G (DL 192/2005)
EPI 101.16 kwh/m2 anno
Riscaldamento autonomo
Condizioni abitabile
| Descrizione | Superficie | Sup. comm. |
|---|---|---|
| Principali | ||
| Capannone - piano terra | 540 Mq | 540 Mqc |
| Altro - piano terra | 60 Mq | 60 Mqc |
| Ufficio - piano terra | 90 Mq | 90 Mqc |
| Ufficio - 1° piano | 100 Mq | 100 Mqc |
| Esterno - piano terra | 410 Mq | 41 Mqc |
| Altro - piano terra | 100 Mq | 50 Mqc |
| Totale | 881 Mqc | |
Zoom della mappa
Apri con:
Apple Maps
Google Maps
Waze
Apri la mappa







