Rif: IMMO-124222901
LISSONE
MONZA BRIANZA € 430.000- Capannone industriale
- Vendita
- 500 Mq
- EPI: 271.81 kwh/m2 anno
- Classe energetica: C
- Descrizione
- Dettaglio immobile
- Consistenze
- Mappa
- Planimetrie
- Video e Virtual Tour
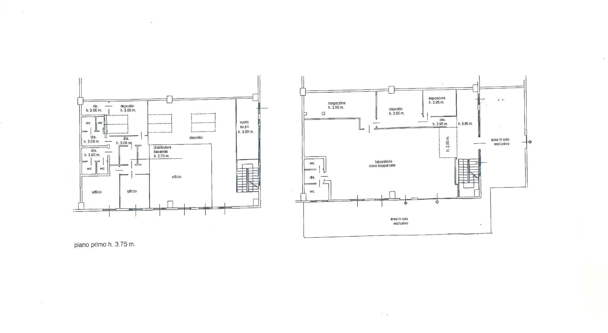
UFFICIO PRODUTTIVO CON LABORATORIO 500 MQ A SOVICO - Disponibilità di immobile artigianale sito nel comune di Sovico (MB) di mq 500 composto da area magazzino al piano terra di mq 180 con altezza utile 4,5 metri, ufficio piano terra di mq 70, ufficio piano primo mq 250.
CARATTERISTICHE:
- N. 1 portone d'accesso
- altezza sotto trave 4,5 mt
- pompa di calore
- ricircolo dell'aria
- impianto elettrico certificato
- allarme
- n. 3 posti auto
- n. 5 servizi
- cortile ad uso esclusivo mq 140
LOCALIZZAZIONE IMMOBILE:
- 4 km dalla SS36
- 15 km dalla A52 Tangenziale Nord di Milano
- 17 km dall'Autostrada A4 Torino-Trieste
Contattaci per maggiori informazioni o per organizzare un sopralluogo.
SCOPRI ALTRE SOLUZIONI SUL NOSTRO SITO WWW.CASAEINDUSTRIA.IT
CARATTERISTICHE:
- N. 1 portone d'accesso
- altezza sotto trave 4,5 mt
- pompa di calore
- ricircolo dell'aria
- impianto elettrico certificato
- allarme
- n. 3 posti auto
- n. 5 servizi
- cortile ad uso esclusivo mq 140
LOCALIZZAZIONE IMMOBILE:
- 4 km dalla SS36
- 15 km dalla A52 Tangenziale Nord di Milano
- 17 km dall'Autostrada A4 Torino-Trieste
Contattaci per maggiori informazioni o per organizzare un sopralluogo.
SCOPRI ALTRE SOLUZIONI SUL NOSTRO SITO WWW.CASAEINDUSTRIA.IT
Contratto Vendita
Rif IMMO-124222901
Prezzo € 430.000
Provincia Monza Brianza
Comune Lissone
Indirizzo Via Enrico Mattei">
Classe energetica
C (DL 192/2005)
EPI 271.81 kwh/m2 anno
Riscaldamento inesistente
Condizioni abitabile
Spese condominiali € 110
| Descrizione | Superficie | Sup. comm. |
|---|---|---|
| Principali | ||
| Capannone - piano terra | 180 Mq | 180 Mqc |
| Ufficio - piano terra | 70 Mq | 70 Mqc |
| Ufficio - 1° piano | 250 Mq | 250 Mqc |
| Totale | 500 Mqc | |
Zoom della mappa
Apri con:
Apple Maps
Google Maps
Waze
Apri la mappa







