Rif: IMMO-124642503
ARLUNO
MILANO € 3.000.000- Capannone industriale
- Vendita
- 4430 Mq
- 1 Vani
- EPI: 65 kwh/m2 anno
- Classe energetica: G
- Descrizione
- Dettaglio immobile
- Consistenze
- Mappa
- Planimetrie
- Video e Virtual Tour
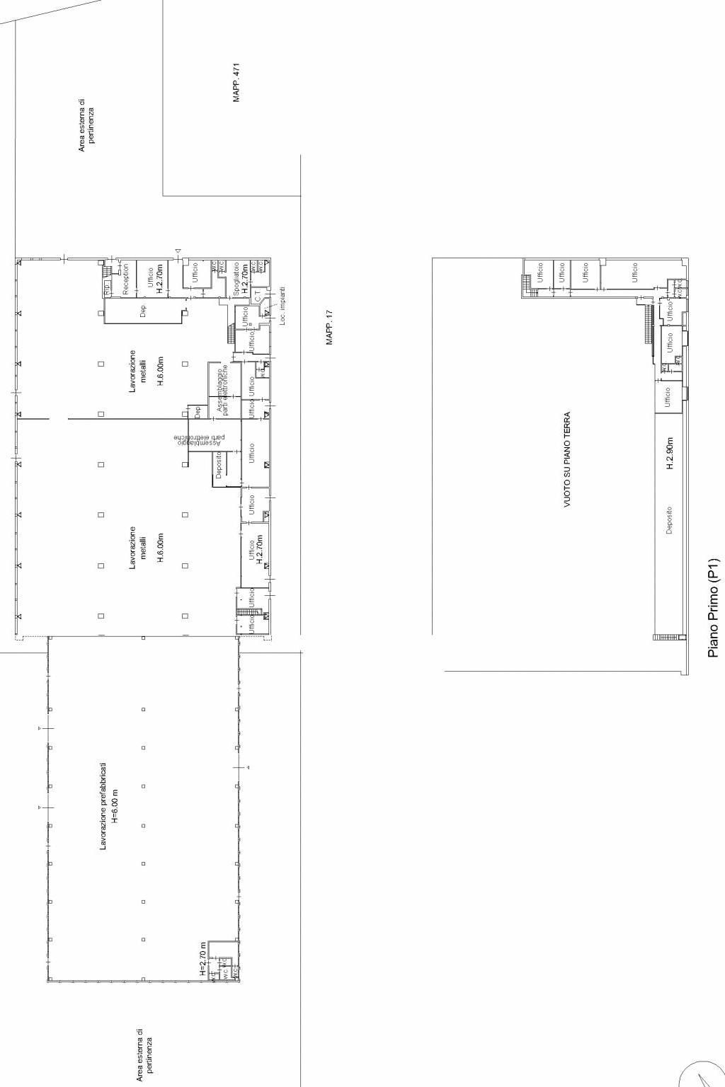
(CAPANNONE DI 3750 MQ PIU' UFFICI DI 680 MQ - CARRIPONTE e AMPIO CORTILE PRIVATO) Il capannone si trova nella zona industriale di Arluno (MI), a pochi minuti dallo svincolo autostradale della MI - TO e in posizione visibile dall'autostrada. La superficie totale è di circa 4430 mq, suddivisa tra zona produttiva/stoccaggio e zona uffici. La zona produttiva è di circa 3750 mq, con altezza utile sotto trave di 6,00 mt, suddivisa in n° 5 campate di cui 2 provviste di carriponte, rispettivamente di 3,00 ton e 3,20 ton. E' già provvista di impianto elettrico, impianto di illuminazione, impianto antincendio e di riscaldamento con tubi radianti. La zona uffici ha ingresso indipendente e si sviluppa su 2 livelli per totali 680 mq. Completa la proprietà l'ampio cortile privato e recintato che consente la movimentazione di mezzi pesanti. SCOPRI ALTRE SOLUZIONI IMMOBILIARI SUL NOSTRO SITO WWW.CASAEINDUSTRIA.IT
I nostri servizi:
- Intermediazione immobiliare;
- valutazioni per la locazione e la vendita di immobili;
- stesura e registrazione contratti;
- certificazioni energetiche;
- finanziamenti su misura;
- progettazione di edifici civili ed industriali;
- calcoli strutture in cemento armato, legno e acciaio;
- perizie, collaudi, asseverazioni statiche;
- direzione lavori;
- supervisione in cantiere nella fase di realizzazione;
- assistenza alle imprese (tracciamenti planimetrici ed altimetrici, contabilità di cantiere);
- computi metrici;
- verifica dispersioni termiche degli edifici (L 10/91);
- progetto impianti;
- operazioni topografiche di rilevamento completo;
- operazioni catastali (tipi di frazionamento, tipi mappali, denunce di nuova costruzione e variazione con acquisizione della rendita catastale, volture).
I nostri servizi:
- Intermediazione immobiliare;
- valutazioni per la locazione e la vendita di immobili;
- stesura e registrazione contratti;
- certificazioni energetiche;
- finanziamenti su misura;
- progettazione di edifici civili ed industriali;
- calcoli strutture in cemento armato, legno e acciaio;
- perizie, collaudi, asseverazioni statiche;
- direzione lavori;
- supervisione in cantiere nella fase di realizzazione;
- assistenza alle imprese (tracciamenti planimetrici ed altimetrici, contabilità di cantiere);
- computi metrici;
- verifica dispersioni termiche degli edifici (L 10/91);
- progetto impianti;
- operazioni topografiche di rilevamento completo;
- operazioni catastali (tipi di frazionamento, tipi mappali, denunce di nuova costruzione e variazione con acquisizione della rendita catastale, volture).
Contratto Vendita
Rif IMMO-124642503
Prezzo € 3.000.000
Provincia Milano
Comune Arluno
Indirizzo Via Alberto da Giussano">
Vani 1
Classe energetica
G (DL 192/2005)
EPI 65 kwh/m2 anno
Riscaldamento autonomo
Condizioni abitabile
| Descrizione | Superficie | Sup. comm. |
|---|---|---|
| Principali | ||
| Capannone - piano terra | 3.750 Mq | 3.750 Mqc |
| Ufficio - piano terra | 420 Mq | 420 Mqc |
| Ufficio - 1° piano | 260 Mq | 260 Mqc |
| Totale | 4.430 Mqc | |
Zoom della mappa
Apri con:
Apple Maps
Google Maps
Waze
Apri la mappa







