Rif: IMMO-124873459
SESTO SAN GIOVANNI
MILANO € 620.000- Capannone industriale
- Vendita
- 860 Mq
- EPI: 100.23 kwh/m2 anno
- Classe energetica: F
- Descrizione
- Dettaglio immobile
- Consistenze
- Mappa
- Planimetrie
- Video e Virtual Tour
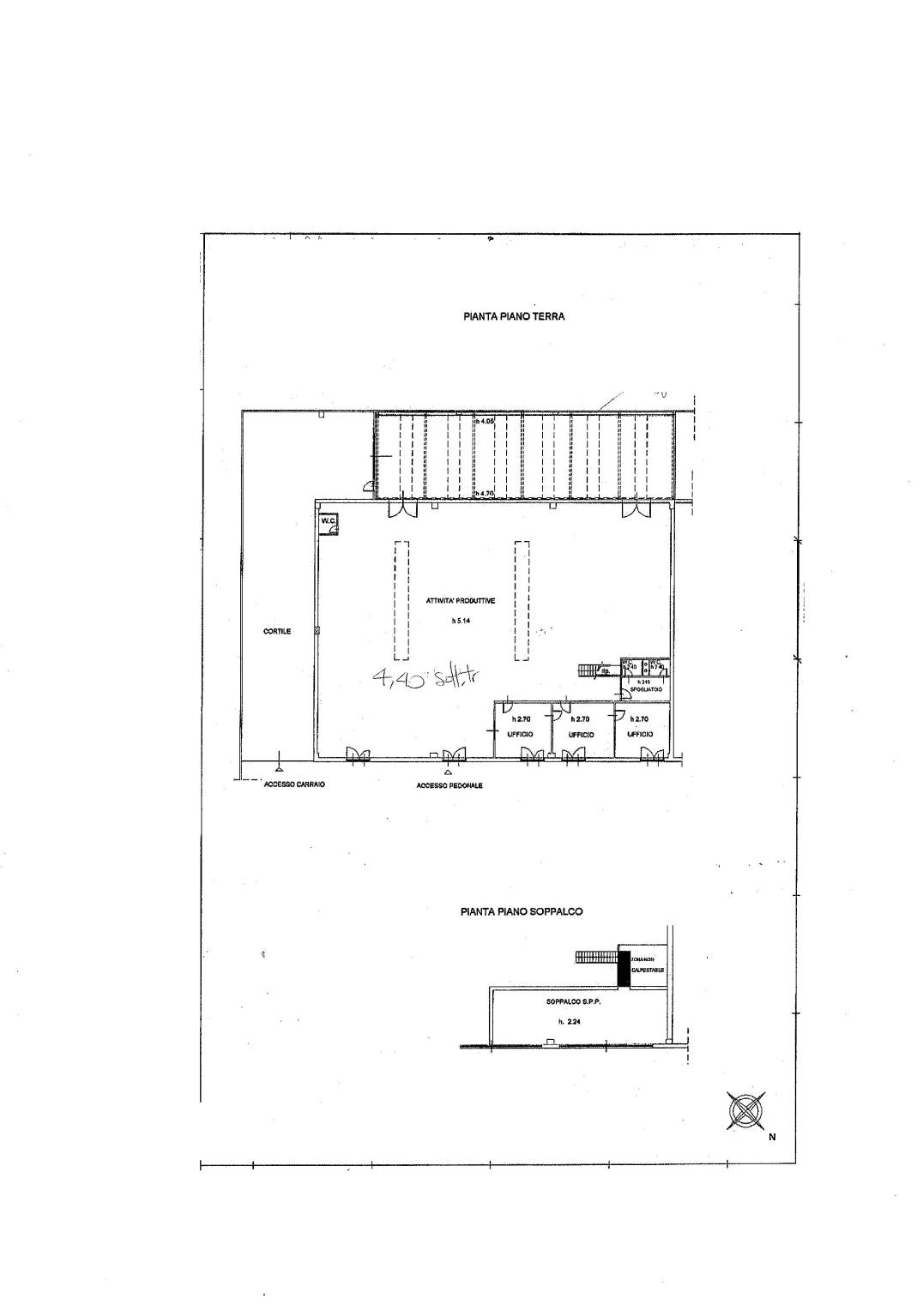
CAPANNONE 860 MQ CON CORTILE PRIVATO 242 MQ A SESTO SAN GIOVANNI - In posizione strategica, a pochi passi da viale Fulvio Testi, proponiamo in vendita un capannone di 860 mq situato all'interno del Centro Industriale Carducci, un complesso a destinazione industriale e terziaria dotato di servizio di portineria. La zona produttiva/deposito, di 784 mq con altezza utile di 4,4 m, è accessibile tramite doppio portone d'ingresso all'interno del cortile privato. L'area è dotata di impianto di riscaldamento a gas e pale di ventilazione a soffitto nella porzione attualmente adibita a punto vendita.
Gli uffici, per complessivi 76 mq, sono suddivisi in tre ambienti e dispongono di tutta l'impiantistica necessaria: riscaldamento, condizionamento con pompa di calore e impianto elettrico.
Completa la proprietà il cortile privato che si estende su due lati di 242 mq.
Ottimi i collegamenti con i mezzi pubblici: la fermata M5 Bignami è raggiungibile in circa 10 minuti a piedi, mentre M1 Sesto Rondò dista circa 16 minuti. La zona è inoltre servita da bar, ristoranti e dal Centro Sarca, situato immediatamente alle spalle dell'edificio.
CARATTERISTICHE:
- Superficie: 860 mq
- Impianto di riscaldamento lato magazzino
- Impianto di riscaldamento lato ufficio
- Condizionamento in pompa di calore lato ufficio
- Due portoni d'accesso al magazzino
- Ottimi collegamenti con mezzi pubblici
- Parcheggio disponibile
- n. 3 servizi con spogliatoio
- ulteriore spazio archivio di 76 mq
- cortile privato 242 mq
LOCALIZZAZIONE IMMOBILE:
- 4 km dall' Autostrada A4
- 4 km dalla A52 Tangenziale Nord di Milano
- 0,2 km dal Viale Fulvio Testi
- 15 Km dall'aeroporto di Linate
Contattaci per maggiori informazioni o per organizzare un sopralluogo.
SCOPRI ALTRE SOLUZIONI SUL NOSTRO SITO WWW.CASAEINDUSTRIA.IT
Gli uffici, per complessivi 76 mq, sono suddivisi in tre ambienti e dispongono di tutta l'impiantistica necessaria: riscaldamento, condizionamento con pompa di calore e impianto elettrico.
Completa la proprietà il cortile privato che si estende su due lati di 242 mq.
Ottimi i collegamenti con i mezzi pubblici: la fermata M5 Bignami è raggiungibile in circa 10 minuti a piedi, mentre M1 Sesto Rondò dista circa 16 minuti. La zona è inoltre servita da bar, ristoranti e dal Centro Sarca, situato immediatamente alle spalle dell'edificio.
CARATTERISTICHE:
- Superficie: 860 mq
- Impianto di riscaldamento lato magazzino
- Impianto di riscaldamento lato ufficio
- Condizionamento in pompa di calore lato ufficio
- Due portoni d'accesso al magazzino
- Ottimi collegamenti con mezzi pubblici
- Parcheggio disponibile
- n. 3 servizi con spogliatoio
- ulteriore spazio archivio di 76 mq
- cortile privato 242 mq
LOCALIZZAZIONE IMMOBILE:
- 4 km dall' Autostrada A4
- 4 km dalla A52 Tangenziale Nord di Milano
- 0,2 km dal Viale Fulvio Testi
- 15 Km dall'aeroporto di Linate
Contattaci per maggiori informazioni o per organizzare un sopralluogo.
SCOPRI ALTRE SOLUZIONI SUL NOSTRO SITO WWW.CASAEINDUSTRIA.IT
Contratto Vendita
Rif IMMO-124873459
Prezzo € 620.000
Provincia Milano
Comune Sesto San Giovanni
Indirizzo Via Giosuè Carducci">
Classe energetica
F (DL 192/2005)
EPI 100.23 kwh/m2 anno
Riscaldamento autonomo
Condizioni abitabile
Spese condominiali € 400
| Descrizione | Superficie | Sup. comm. |
|---|---|---|
| Principali | ||
| Capannone - piano terra | 594 Mq | 594 Mqc |
| Capannone - piano terra | 190 Mq | 190 Mqc |
| Ufficio - piano terra | 76 Mq | 76 Mqc |
| Totale | 860 Mqc | |
Zoom della mappa
Apri con:
Apple Maps
Google Maps
Waze
Apri la mappa







