Rif: IMMO-124908365
CERRO MAGGIORE
MILANO € 5.416- Capannone industriale
- Affitto
- 1300 Mq
- 6 Vani
- EPI: 65 kwh/m2 anno
- Classe energetica: G
- Descrizione
- Dettaglio immobile
- Consistenze
- Mappa
- Planimetrie
- Video e Virtual Tour
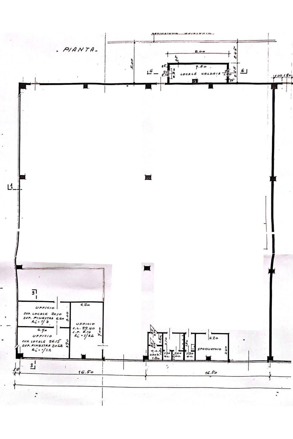
(CAPANNONE DI 1080 MQ PIU' UFFICI DI 100 MQ - CORTILE PRIVATO DI 1200 MQ - CON CARRIPONTE DA 3,2 TON - FRONTE STRADA) Il capannone si trova nella zona industriale di Cerro Maggiore (MI), a pochi minuti dall'ingresso autostradale di Legnano (MI), posto sul fronte strada. La superficie totale è di circa 1180 mq comprensiva di zona produttiva/stoccaggio e zona uffici. L'area produttiva è di circa 1080 mq, con altezza utile di 8,00 mt, suddivisa in due campate entrambe fornite di carroponte da 3,2 ton. La zona di lavorazione è già provvista di impianto di illuminazione, impianto elettrico (33 KW), impianto d'aria compressa e antincendio, oltre a locali spogliatoi e servizi. Gli uffici sono di circa 100 mq suddivisi in 4 locali, già forniti dell'impiantistica necessaria. Le operazioni di carico/scarico sono favorite dall'ampio cortile privato e dal doppio passo carraio che consente la movimentazione di mezzi pesanti. Possibilità di rilevare la scaffalatura esistente. SCOPRI ALTRE SOLUZIONI IMMOBILIARI SUL SITO WWW.CASAEINDUSTRIA.IT
I nostri servizi:
- Intermediazione immobiliare;
- valutazioni per la locazione e la vendita di immobili;
- stesura e registrazione contratti;
- certificazioni energetiche;
- finanziamenti su misura;
- progettazione di edifici civili ed industriali;
- calcoli strutture in cemento armato, legno e acciaio;
- perizie, collaudi, asseverazioni statiche;
- direzione lavori;
- supervisione in cantiere nella fase di realizzazione;
- assistenza alle imprese (tracciamenti planimetrici ed altimetrici, contabilità di cantiere);
- computi metrici;
- verifica dispersioni termiche degli edifici (L 10/91);
- progetto impianti;
- operazioni topografiche di rilevamento completo;
- operazioni catastali (tipi di frazionamento, tipi mappali, denunce di nuova costruzione e variazione con acquisizione della rendita catastale, volture).
I nostri servizi:
- Intermediazione immobiliare;
- valutazioni per la locazione e la vendita di immobili;
- stesura e registrazione contratti;
- certificazioni energetiche;
- finanziamenti su misura;
- progettazione di edifici civili ed industriali;
- calcoli strutture in cemento armato, legno e acciaio;
- perizie, collaudi, asseverazioni statiche;
- direzione lavori;
- supervisione in cantiere nella fase di realizzazione;
- assistenza alle imprese (tracciamenti planimetrici ed altimetrici, contabilità di cantiere);
- computi metrici;
- verifica dispersioni termiche degli edifici (L 10/91);
- progetto impianti;
- operazioni topografiche di rilevamento completo;
- operazioni catastali (tipi di frazionamento, tipi mappali, denunce di nuova costruzione e variazione con acquisizione della rendita catastale, volture).
Contratto Affitto
Rif IMMO-124908365
Prezzo € 5.416
Provincia Milano
Comune Cerro Maggiore
Indirizzo Via John Fitzgerald Kennedy">
Vani 6
Classe energetica
G (DL 192/2005)
EPI 65 kwh/m2 anno
Riscaldamento inesistente
Condizioni abitabile
| Descrizione | Superficie | Sup. comm. |
|---|---|---|
| Principali | ||
| Capannone - piano terra | 1.080 Mq | 1.080 Mqc |
| Ufficio - piano terra | 100 Mq | 100 Mqc |
| Esterno - piano terra | 1.200 Mq | 120 Mqc |
| Totale | 1.300 Mqc | |
Zoom della mappa
Apri con:
Apple Maps
Google Maps
Waze
Apri la mappa







