Rif: IMMO-125051891
SETTIMO MILANESE
MILANO € 34.000- Capannone industriale
- Affitto
- 6792 Mq
- 6 Vani
- EPI: 65 kwh/m2 anno
- Classe energetica: G
- Descrizione
- Dettaglio immobile
- Consistenze
- Mappa
- Planimetrie
- Video e Virtual Tour
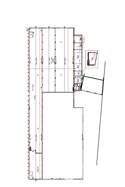
(CAPANNONE DI 6333 MQ PIU' UFFICI DI RAPPRESENTANZA 459 MQ - ALTEZZA 8,50 MT - CON CARRIPONTE) L'immobile si trova nella zona industriale di Settimo Milanese (MI), a pochi minuti dall'accesso autostradale e dalla Tangenziale Ovest. La zona è inoltre servita dalla fermata dell'autobus e da attività di ristorazione a pochi passi. La superficie totale è di circa 6792 mq comprensiva di zona produttiva/stoccaggio e zona uffici. Gli uffici hanno ingresso indipendente e sono di circa 459 mq, distribuiti su due livelli e già provvisti di tutta l'impiantistica necessaria. La configurazione è in parte open-space e in parte suddivisa in locali, con pareti mobili e vetrate. L'area produttiva/stoccaggio è suddivisa su 2 capannoni per totali 6333 mq (capannone di 3118 mq - capannone di 3215 mq) liberi da colonne e provvisti di impianto elettrico, impianto di illuminazione e antincendio, con altezza utile di 8,50 mt. Completa la proprietà il cortile recintato ideale per la movimentazione di mezzi pesanti. Eventuale utilizzo dei carriponte presenti previa revisione dell'impianto. SCOPRI ALTRE SOLUZIONI SUL NOSTRO SITO WWW.CASAEINDUSTRIA.IT
I nostri servizi:
- Intermediazione immobiliare;
- valutazioni per la locazione e la vendita di immobili;
- stesura e registrazione contratti;
- certificazioni energetiche;
- finanziamenti su misura;
- progettazione di edifici civili ed industriali;
- calcoli strutture in cemento armato, legno e acciaio;
- perizie, collaudi, asseverazioni statiche;
- direzione lavori;
- supervisione in cantiere nella fase di realizzazione;
- assistenza alle imprese (tracciamenti planimetrici ed altimetrici, contabilità di cantiere);
- computi metrici;
- verifica dispersioni termiche degli edifici (L 10/91);
- progetto impianti;
- operazioni topografiche di rilevamento completo;
- operazioni catastali (tipi di frazionamento, tipi mappali, denunce di nuova costruzione e variazione con acquisizione della rendita catastale, volture).
I nostri servizi:
- Intermediazione immobiliare;
- valutazioni per la locazione e la vendita di immobili;
- stesura e registrazione contratti;
- certificazioni energetiche;
- finanziamenti su misura;
- progettazione di edifici civili ed industriali;
- calcoli strutture in cemento armato, legno e acciaio;
- perizie, collaudi, asseverazioni statiche;
- direzione lavori;
- supervisione in cantiere nella fase di realizzazione;
- assistenza alle imprese (tracciamenti planimetrici ed altimetrici, contabilità di cantiere);
- computi metrici;
- verifica dispersioni termiche degli edifici (L 10/91);
- progetto impianti;
- operazioni topografiche di rilevamento completo;
- operazioni catastali (tipi di frazionamento, tipi mappali, denunce di nuova costruzione e variazione con acquisizione della rendita catastale, volture).
Contratto Affitto
Rif IMMO-125051891
Prezzo € 34.000
Provincia Milano
Comune Settimo Milanese
Indirizzo Via Thomas Alva Edison">
Vani 6
Classe energetica
G (DL 192/2005)
EPI 65 kwh/m2 anno
Riscaldamento autonomo
Condizioni ottime condizioni
| Descrizione | Superficie | Sup. comm. |
|---|---|---|
| Principali | ||
| Capannone - piano terra | 3.118 Mq | 3.118 Mqc |
| Ufficio - piano terra | 226 Mq | 226 Mqc |
| Ufficio - 1° piano | 233 Mq | 233 Mqc |
| Capannone - piano terra | 3.215 Mq | 3.215 Mqc |
| Totale | 6.792 Mqc | |
Zoom della mappa
Apri con:
Apple Maps
Google Maps
Waze
Apri la mappa







