Rif: IMMO-126107221
RHO
MILANO € 21.666- Capannone industriale
- Affitto
- 4360 Mq
- EPI: 65 kwh/m2 anno
- Classe energetica: F
- Descrizione
- Dettaglio immobile
- Consistenze
- Mappa
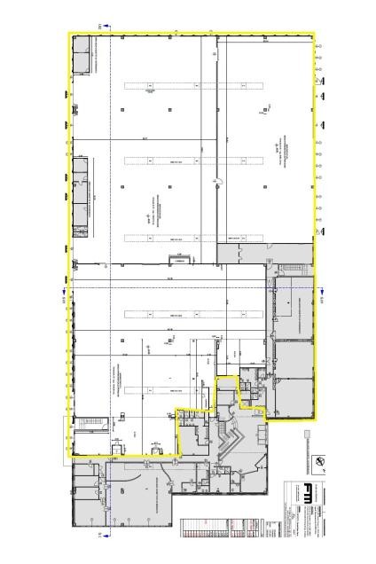
- Planimetrie
- Video e Virtual Tour
(CAPANNONE DI 4000 MQ PIU' UFFICIO DI 360 MQ - H 8,15 MT - IN FASE DI RISTRUTTURAZIONE) La proprietà si trova nella zona industriale di Mazzo di Rho (MI), a pochi minuti di strada dai mezzi pubblici quali la fermata metropolitana di Rho - Fiera e la fermata del treno. La zona è inoltre molto comoda con gli svincoli autostradali e con l'accesso alla tangenziale ovest. La zona produttiva/stoccaggio è di circa 4000 mq, con altezza utile sotto trave di 8,15 mt, fornita di impianto elettrico, impianto di illuminazione e impianto antincendio. Gli uffici sono di circa 360 mq e verranno consegnati provvisti di tutta l'impiantistica necessaria. Le operazioni di carico/scarico sono favorite dai 4 portoni d'accesso e dalle ampie aree di manovra. Si ha la possibilità di ampliare la zona uffici in base alle esigenze. SCOPRI ALTRE SOLUZIONI SUL NOSTRO SITO WWW.CASAEINDUSTRIA.IT I nostri servizi:
- Intermediazione immobiliare;
- valutazioni per la locazione e la vendita di immobili;
- stesura e registrazione contratti;
- certificazioni energetiche;
- finanziamenti su misura;
- progettazione di edifici civili ed industriali;
- calcoli strutture in cemento armato, legno e acciaio;
- perizie, collaudi, asseverazioni statiche;
- direzione lavori;
- supervisione in cantiere nella fase di realizzazione;
- assistenza alle imprese (tracciamenti planimetrici ed altimetrici, contabilità di cantiere);
- computi metrici;
- verifica dispersioni termiche degli edifici (L 10/91);
- progetto impianti;
- operazioni topografiche di rilevamento completo;
- operazioni catastali (tipi di frazionamento, tipi mappali, denunce di nuova costruzione e variazione con acquisizione della rendita catastale, volture).
- Intermediazione immobiliare;
- valutazioni per la locazione e la vendita di immobili;
- stesura e registrazione contratti;
- certificazioni energetiche;
- finanziamenti su misura;
- progettazione di edifici civili ed industriali;
- calcoli strutture in cemento armato, legno e acciaio;
- perizie, collaudi, asseverazioni statiche;
- direzione lavori;
- supervisione in cantiere nella fase di realizzazione;
- assistenza alle imprese (tracciamenti planimetrici ed altimetrici, contabilità di cantiere);
- computi metrici;
- verifica dispersioni termiche degli edifici (L 10/91);
- progetto impianti;
- operazioni topografiche di rilevamento completo;
- operazioni catastali (tipi di frazionamento, tipi mappali, denunce di nuova costruzione e variazione con acquisizione della rendita catastale, volture).
Contratto Affitto
Rif IMMO-126107221
Prezzo € 21.666
Provincia Milano
Comune Rho
Indirizzo Viale Alcide de Gasperi">
Classe energetica
F (DL 192/2005)
EPI 65 kwh/m2 anno
Riscaldamento inesistente
Condizioni abitabile
| Descrizione | Superficie | Sup. comm. |
|---|---|---|
| Principali | ||
| Capannone - piano terra | 4.000 Mq | 4.000 Mqc |
| Ufficio - piano terra | 360 Mq | 360 Mqc |
| Totale | 4.360 Mqc | |
Zoom della mappa
Apri con:
Apple Maps
Google Maps
Waze
Apri la mappa







