Rif: IMMO-126097213
BRUGHERIO
MONZA BRIANZA € 5.416- Capannone industriale
- Affitto
- 910 Mq
- 4 Vani
- EPI: 233.81 kwh/m2 anno
- Classe energetica: C
- Descrizione
- Dettaglio immobile
- Consistenze
- Mappa
- Planimetrie
- Video e Virtual Tour
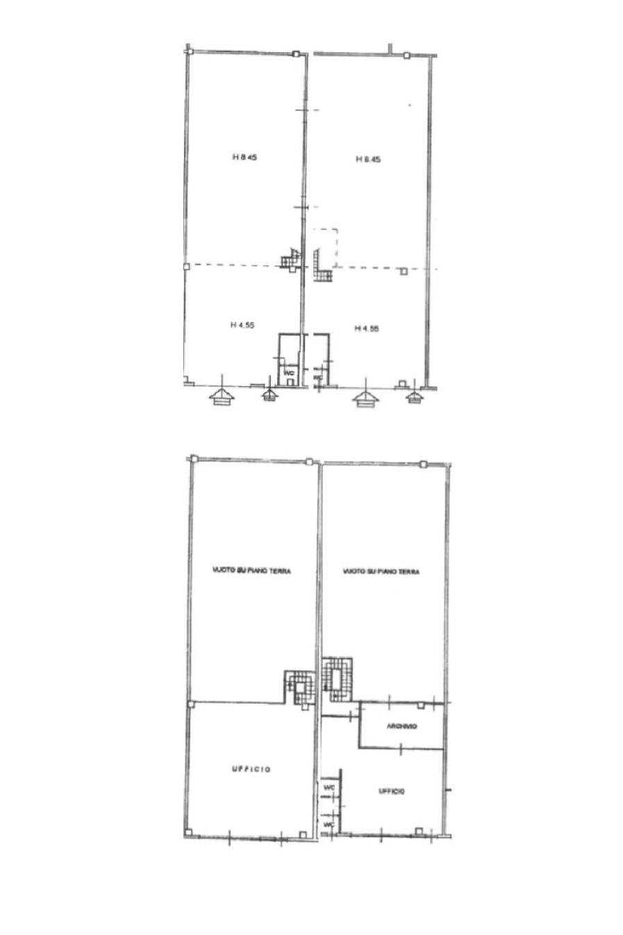
CAPANNONE 910 MQ SITO A BRUGHERIO - AREA PRODUTTIVA MQ 670 – SOPPALCO MQ 120 – UFFICIO MQ 120 - Il capannone è situato nel Comune di Brugherio al confine con Agrate Brianza, in posizione strategica dal punto di vista logistico: la barriera di Agrate Brianza dell'autostrada A4 Torino–Trieste dista circa 4 km, mentre l'ingresso della Tangenziale Est di Milano (A51) è raggiungibile in soli 3 km, garantendo collegamenti rapidi con Milano e le principali direttrici di traffico.
L'immobile si sviluppa su una superficie complessiva di circa 910 mq, così suddivisa:
• 670 mq al piano terra, con altezze utili variabili di 8,5 metri e 4,5 metri, ideali per attività produttive e logistiche;
• 120 mq ad uso uffici al piano primo;
• 120 mq di soppalco.
Internamente il capannone è dotato di tutta l'impiantistica necessaria e dispone di due ampi portoni di accesso, che agevolano le operazioni di carico e scarico.
La zona uffici, posta al primo piano, è rifinita con pavimento galleggiante, controsoffitto, ed è servita da impianto di riscaldamento e condizionamento.
Completano la proprietà 6 posti auto ad uso esclusivo, situati all'interno del complesso condominiale.
SCOPRI ALTRE SOLUZIONI SUL NOSTRO SITO WWW.CASAEINDUSTRIA.IT
L'immobile si sviluppa su una superficie complessiva di circa 910 mq, così suddivisa:
• 670 mq al piano terra, con altezze utili variabili di 8,5 metri e 4,5 metri, ideali per attività produttive e logistiche;
• 120 mq ad uso uffici al piano primo;
• 120 mq di soppalco.
Internamente il capannone è dotato di tutta l'impiantistica necessaria e dispone di due ampi portoni di accesso, che agevolano le operazioni di carico e scarico.
La zona uffici, posta al primo piano, è rifinita con pavimento galleggiante, controsoffitto, ed è servita da impianto di riscaldamento e condizionamento.
Completano la proprietà 6 posti auto ad uso esclusivo, situati all'interno del complesso condominiale.
SCOPRI ALTRE SOLUZIONI SUL NOSTRO SITO WWW.CASAEINDUSTRIA.IT
Contratto Affitto
Rif IMMO-126097213
Prezzo € 5.416
Provincia Monza Brianza
Comune Brugherio
Indirizzo Via Aristotele">
Vani 4
Classe energetica
C (DL 192/2005)
EPI 233.81 kwh/m2 anno
Riscaldamento autonomo
Condizioni abitabile
Spese condominiali € 100
| Descrizione | Superficie | Sup. comm. |
|---|---|---|
| Principali | ||
| Capannone - piano terra | 670 Mq | 670 Mqc |
| Capannone - 1° piano | 120 Mq | 120 Mqc |
| Ufficio - 1° piano | 120 Mq | 120 Mqc |
| Totale | 910 Mqc | |
Zoom della mappa
Apri con:
Apple Maps
Google Maps
Waze
Apri la mappa







